$ 899,000
–
33 Heritage Park
This listing presented by
Daryl Carlson
. Contact Daryl by phone:
403-259-4141
or email direct
here
.
Overview
Print
Download
Contact Agent
Listing Info
Area:
Cochrane
Property Type:
Single Family
Ownership:
Freehold
MLS® Number:
A2274513
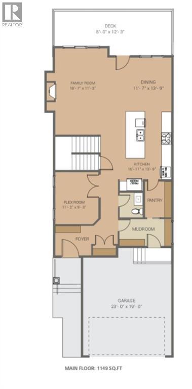
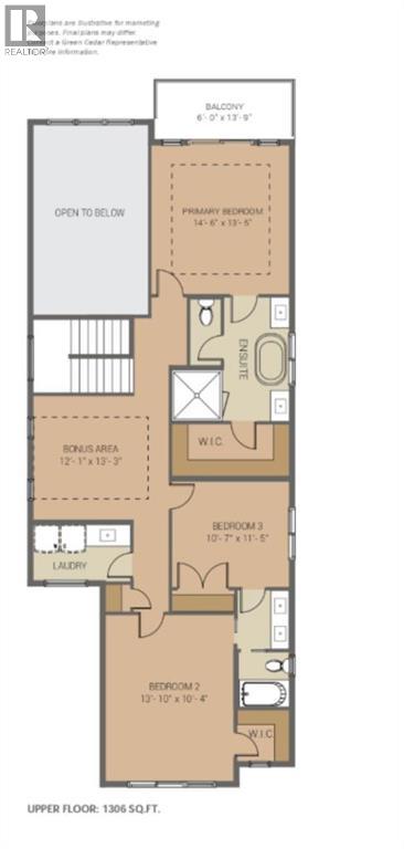
Bedroom:
3
Bathroom:
3
Year Built:
2025
Lot Size:
341.88
Listing Status:
Active
List Price:
$ 899,000
Download
Print