$ 898,900
–
6 Rancher Meadows
This listing presented by
Daryl Carlson
. Contact Daryl by phone:
403-259-4141
or email direct
here
.
Overview
Print
Download
Contact Agent
Listing Info
Area:
Okotoks
Property Type:
Single Family
Ownership:
Freehold
MLS® Number:
A2274983
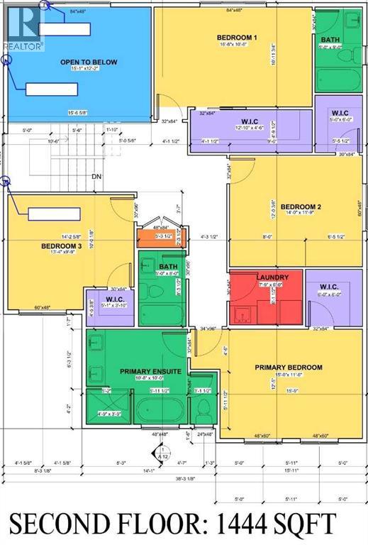
Bedroom:
4
Bathroom:
4
Year Built:
2026
Lot Size:
445.5
Listing Status:
Active
List Price:
$ 898,900
Download
Print