$ 456,789
–
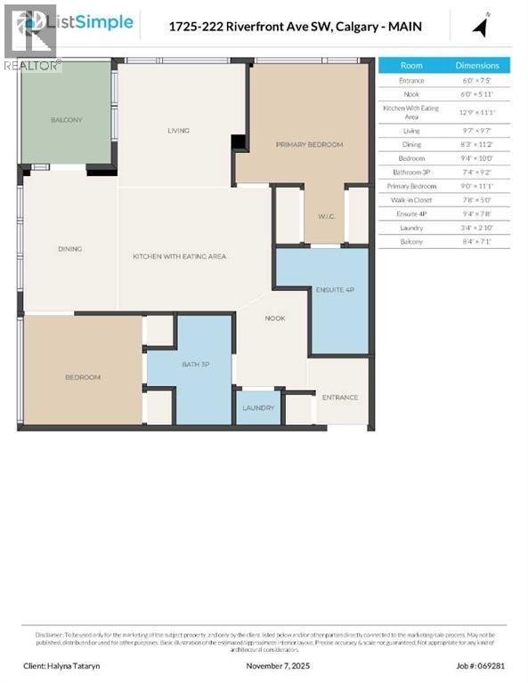
222 RIVERFRONT Avenue Southwest
This listing presented by
Daryl Carlson
. Contact Daryl by phone:
403-259-4141
or email direct
here
.
Overview
Print
Download
Contact Agent
Listing Info
Area:
Calgary
Property Type:
Single Family
Ownership:
Condominium/Strata
MLS® Number:
A2274368
Bedroom:
2
Bathroom:
2
Year Built:
2012
Listing Status:
Active
List Price:
$ 456,789
Download
Print