$ 657,000
–
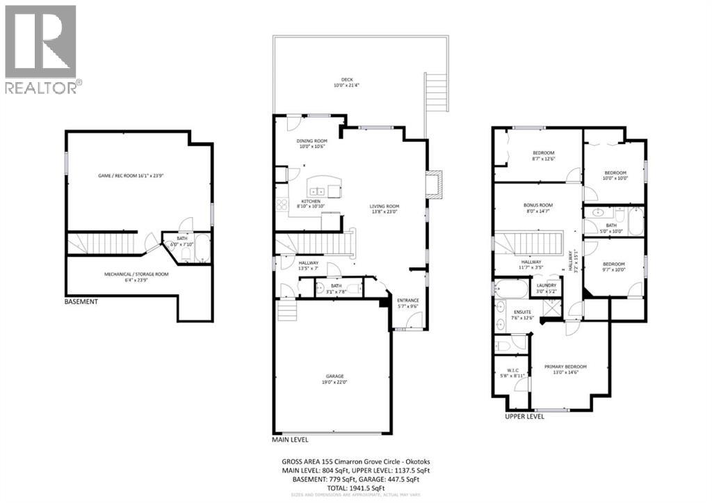
155 Cimarron Grove Circle
This listing presented by
Daryl Carlson
. Contact Daryl by phone:
403-259-4141
or email direct
here
.
Overview
Print
Download
Contact Agent
Listing Info
Area:
Okotoks
Property Type:
Single Family
Ownership:
Freehold
MLS® Number:
A2274025
Bedroom:
4
Bathroom:
4
Year Built:
2007
Lot Size:
3961
Listing Status:
Active
List Price:
$ 657,000
Download
Print