$ 2,078,888
–
218 19 Avenue Northwest
This listing presented by
Daryl Carlson
. Contact Daryl by phone:
403-259-4141
or email direct
here
.
Overview
Print
Download
Contact Agent
Listing Info
Area:
Calgary
Property Type:
Single Family
Ownership:
Freehold
MLS® Number:
A2268641
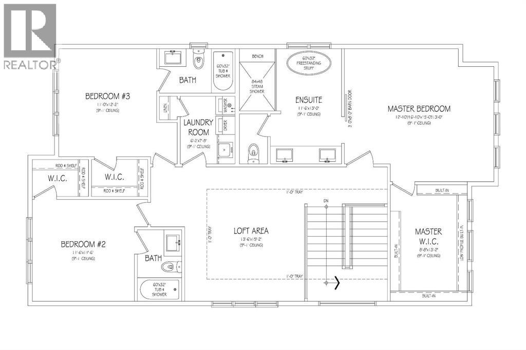
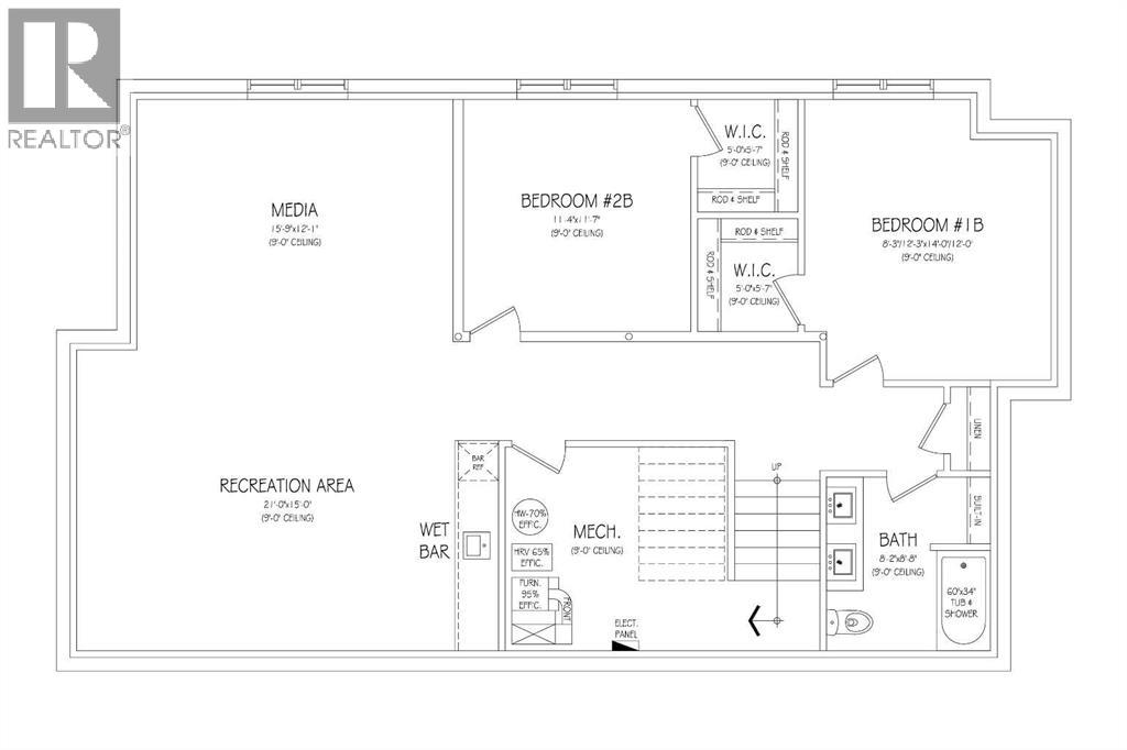
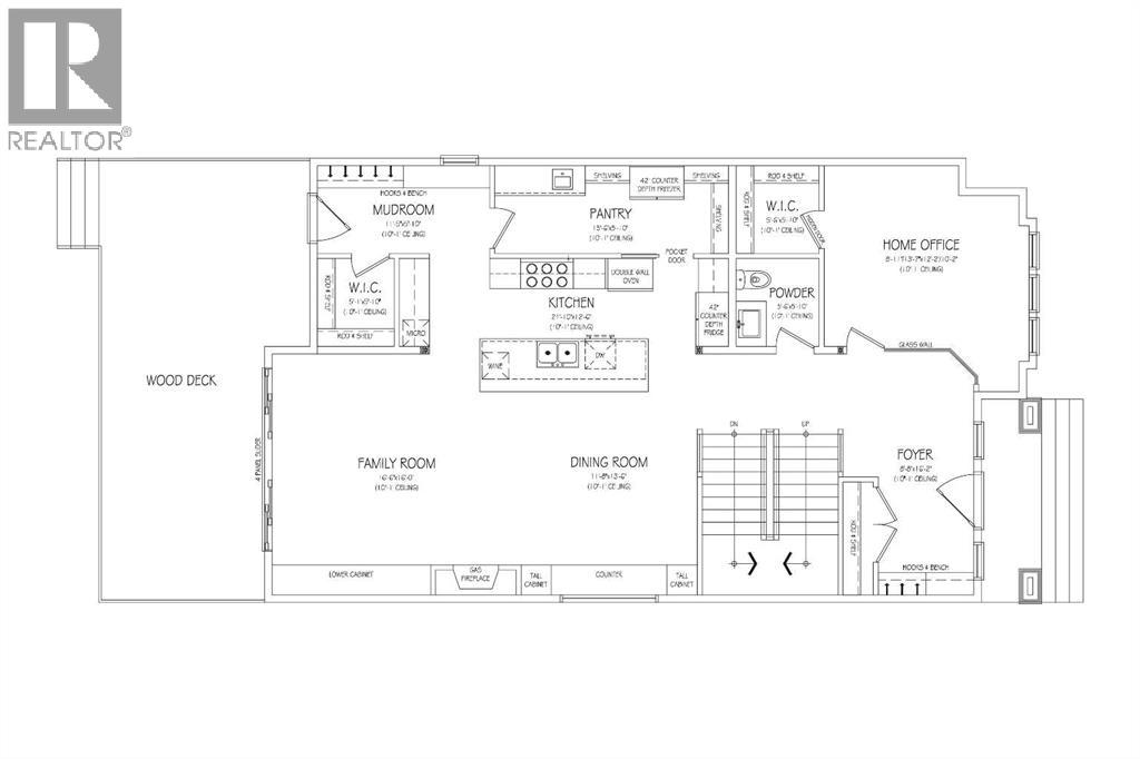
Bedroom:
5
Bathroom:
5
Year Built:
2026
Lot Size:
4693.06
Listing Status:
Active
List Price:
$ 2,078,888
Download
Print