$ 1,024,900
–
3511 42 Street Southwest
This listing presented by
Daryl Carlson
. Contact Daryl by phone:
403-259-4141
or email direct
here
.
Overview
Print
Download
Contact Agent
Listing Info
Area:
Calgary
Property Type:
Single Family
Ownership:
Freehold
MLS® Number:
A2270058
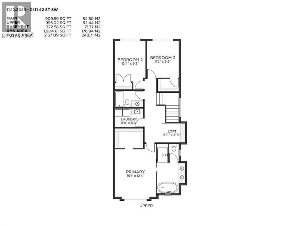
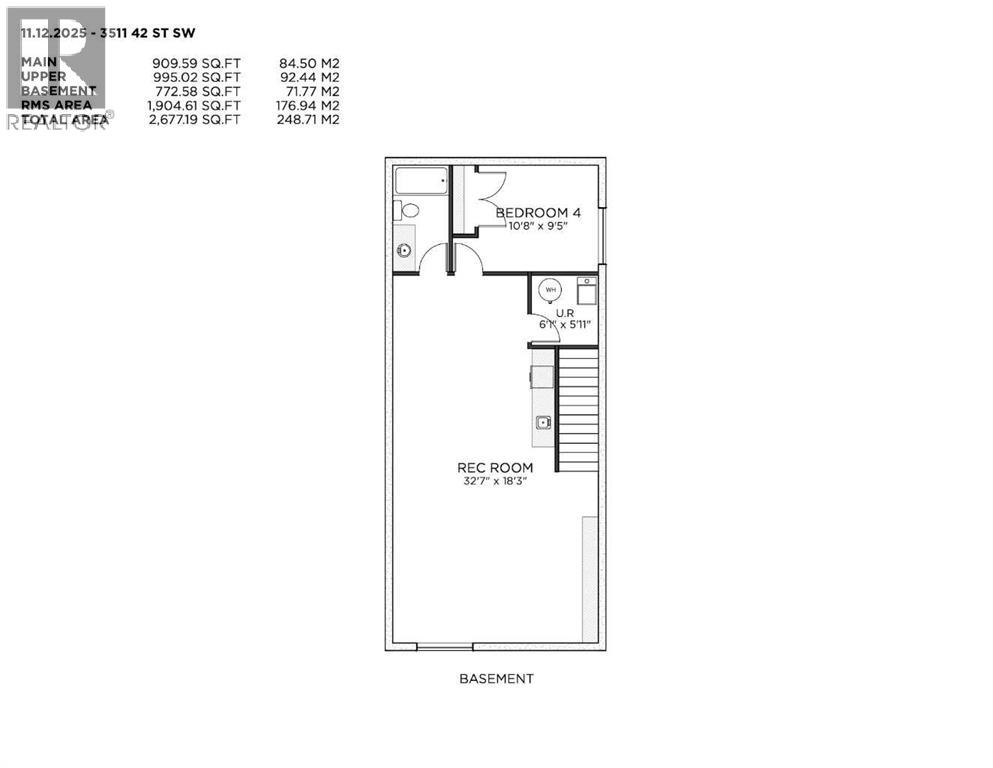
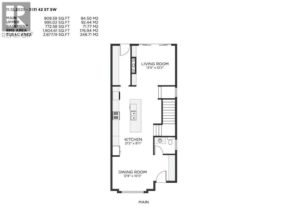
Bedroom:
4
Bathroom:
4
Year Built:
2025
Lot Size:
2871.31
Listing Status:
Active
List Price:
$ 1,024,900
Download
Print