$ 661,900
–
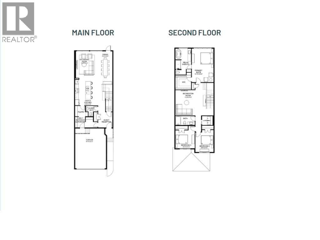
46 Heritage Heath
This listing presented by
Daryl Carlson
. Contact Daryl by phone:
403-259-4141
or email direct
here
.
Overview
Print
Download
Contact Agent
Listing Info
Area:
Cochrane
Property Type:
Single Family
Ownership:
Freehold
MLS® Number:
A2262940
Bedroom:
3
Bathroom:
3
Year Built:
2025
Lot Size:
327.57
Listing Status:
Active
List Price:
$ 661,900
Download
Print