$ 2,690,000
–
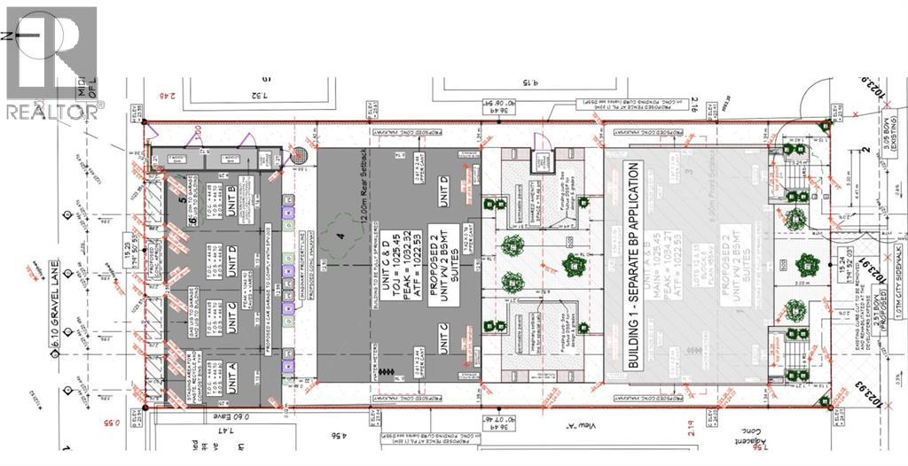
7425 20 Street Southeast
This listing presented by
Daryl Carlson
. Contact Daryl by phone:
403-259-4141
or email direct
here
.
Overview
Map & Nearby
Street View
Print
Download
Contact Agent
Listing Info
Area:
Calgary
Property Type:
Multi-family
Ownership:
Freehold
MLS® Number:
A2267502
Year Built:
2026
Listing Status:
Active
List Price:
$ 2,690,000
Place Nearby
(within radius 1.5 km)
Download
Print