$ 4,221
–
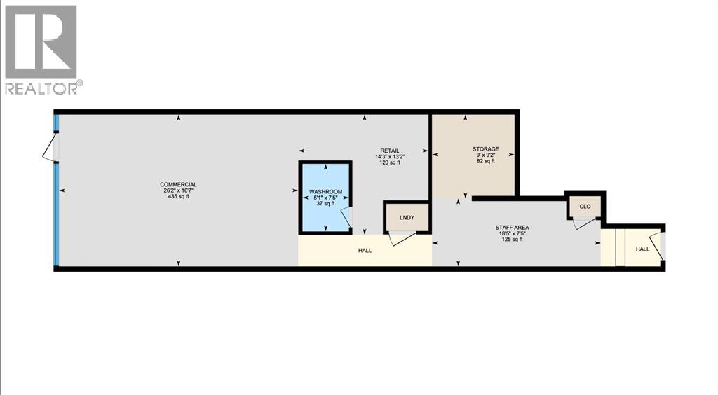
4535 Bowness Road Northwest
This listing presented by
Daryl Carlson
. Contact Daryl by phone:
403-259-4141
or email direct
here
.
Overview
Map & Nearby
Street View
Print
Download
Contact Agent
Listing Info
Area:
Calgary
Property Type:
Business
MLS® Number:
A2253889
Year Built:
2019
Listing Status:
Active
List Price:
$ 4,221
Place Nearby
(within radius 1.5 km)
Download
Print