$ 3,600,000
–
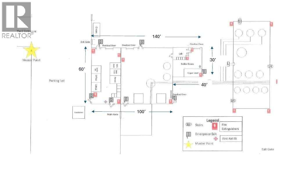
450254 82 Street East
This listing presented by
Daryl Carlson
. Contact Daryl by phone:
403-259-4141
or email direct
here
.
Overview
Map & Nearby
Street View
Print
Download
Contact Agent
Listing Info
Area:
Rural Foothills County
Property Type:
Industrial
MLS® Number:
A2213921
Year Built:
2007
Lot Size:
2.45
Listing Status:
Active
List Price:
$ 3,600,000
Place Nearby
(within radius 1.5 km)
Download
Print