Daryl Carlson - 403-259-4141

 BACK  

Single Family in Calgary

$699,000.00
109 Corner Glen Green Northeast - MLS® #: A2291705
  • (100)
  • 122
  • 146
  • 3 Bedrooms
  • 3 Bathrooms
  • 2141 Sq Ft
avatar
Daryl Carlson
403-259-4141

Property Type

Single Family

Description

Stop settling for "almost perfect" and start building your dream. This is a rare opportunity to SECURE A PREMIUM, OVERSIZED PIE-SHAPED LOT IN THE VIBRANT COMMUNITY OF CORNERSTONE. With an IMPRESSIVE REAR WIDTH OF APPROXIMATELY 57 FEET, you finally have the space to create the sprawling backyard you’ve always wanted. Whether you have a vision from scratch or want a head start, we provide the flexibility to ensure your home fits your lifestyle perfectly. START WITH OUR POPULAR PRE-PLANNED MODELS AND MODIFY THEM TO SUIT YOUR FAMILY’S SPECIFIC NEEDS. All our pre-planned options already feature popular and much needed Main Floor Bedroom and Full Bathroom, Upstairs Bonus Room and customizations can be done to include Spice Kitchen, Front Facing Bonus Room and much more! THIS LOT IS JUST WALKING DISTANCE TO AN EXISTING PLAYGROUND and a few minutes from the future school site and the upcoming community recreation center. Cornerstone offers an effortless access to Country Hills Blvd and Stoney Trail, keeping the rest of Calgary within easy reach. Discuss with us about your need for a finished basement legal suite (subject to permits and City of Calgary approval). Don't miss this opportunity of building your dream home on a not so commonly available pie-shaped lot. (id:6769

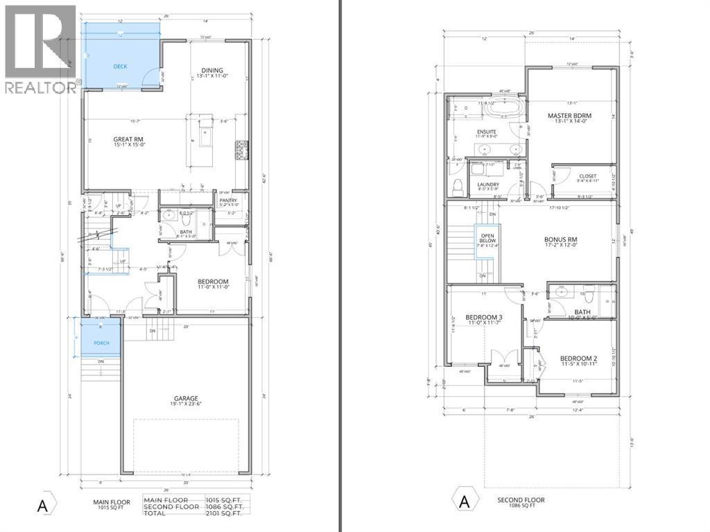
Property Details

Subarea
Cornerstone

Lot
4606.95

Year Built
2026

Flooring
Carpeted,Ceramic Tile,Vinyl Plank

Parking Type
4

Rooms Dimension

RoomFloorDimension
2pc BathroomMain level8.08 Ft x 5.00 Ft
Great roomMain level15.08 Ft x 15.00 Ft
Dining roomMain level13.08 Ft x 11.00 Ft
Primary BedroomUpper Level13.08 Ft x 14.00 Ft
Bonus RoomUpper Level17.17 Ft x 12.00 Ft
5pc BathroomUpper Level11.75 Ft x 9.00 Ft
BedroomUpper Level11.00 Ft x 11.58 Ft
BedroomUpper Level11.42 Ft x 10.92 Ft
3pc BathroomUpper Level10.00 Ft x 5.00 Ft

Disclaimer:

a

Listing data last updated date: 2026-03-15 05:13:27

a

Listing Agent: Arshdeep Randhawa

Brokerage: REMAX Innovations