Daryl Carlson - 403-259-4141

 BACK  

Loading map...

Industrial in Airdrie

$24.00
2920 Kingsview Boulevard Southeast - MLS® #: A2231218
  • (246)
  • 148
  • 191
  • 0 Bedrooms
  • 0 Bathrooms
  • 1475 Sq Ft
avatar
Daryl Carlson
403-259-4141

Property Type

Industrial

Description

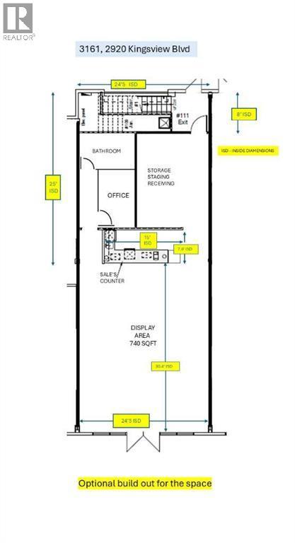
Main floor Commercial Bay for lease including 1475 sqft of open space. There are plenty of opportunities to complete a custom-built space for your business. This unit also comes complete with a washroom, great lighting and a large store front. The current zoning is IB-1 in this mixed-use complex with many classifications for your business including Business Support, Financial Services, Health Care Limited, Office, Public Assembly, Restaurant and many more. There is plenty of parking and great access off the new 40th Ave overpass. Monthly lease cost is Net lease $2950.00 + $263.88 condo fee + $275.00 prop tax =$3488.88 Plus gst, plus utilities, plus internet. (id:6769

Property Details

Subarea
Kingsview Industrial Park

Lot
151.2

Year Built
2019

Disclaimer:

a

Listing data last updated date: 2025-12-01 03:57:38

a

Listing Agent: Andre Aubut

Brokerage: Century 21 Masters