Daryl Carlson - 403-259-4141

 BACK  

Single Family in Calgary

$2,199,000.00
120 8 Avenue Northwest - MLS® #: A2291389
  • (183)
  • 189
  • 248
  • 5 Bedrooms
  • 4 Bathrooms
  • 2771 Sq Ft
avatar
Daryl Carlson
403-259-4141

Property Type

Single Family

Description

The Ultimate Inner-City Location – Steps from Crescent Park! Enjoy life just moments from tennis and basketball courts, a skating rink, playground, curling rink, and two baseball diamonds. Tucked away behind Crescent Road in a quiet setting, this home is within walking distance to downtown, Prince’s Island, St. Patrick’s Island, and the Bow River pathways. Bordering Rosedale, it offers stunning city, river, and mountain views.This custom-built 5-bedroom home boasts over 4,200 sq. ft. of luxurious living space, blending timeless design with modern comfort. Featuring 10’ceilings in basement and main floor and 9’ ceilings on upper floor with all rooms having tray ceilings, a massive chef’s kitchen with quartz counters and a butler’s pantry, high end JENN AIR appliances, black triple pane high efficiency windows, the open-concept layout flows seamlessly into the elegant living room with fireplace and French doors leading to a beautiful backyard oasis. The main floor also includes a spacious office and a formal dining room with city views. Upstairs, enjoy a bonus room, two additional bedrooms, and a private master retreat with barrel ceilings, fireplace, city views, a spa-like 5-piece en-suite, and a walk-in closet. The upstairs laundry adds extra convenience. The fully finished lower level features a media room, bar, gym, wine cellar, two more bedrooms, and a custom 4-piece bath—perfect for family or guests. This is truly a rare find in one of Calgary’s most desirable inner-city locations. (id:6769

Property Details

Subarea
Crescent Heights

Lot
373

Year Built
2026

Flooring
Carpeted,Ceramic Tile,Hardwood

Parking Type
2

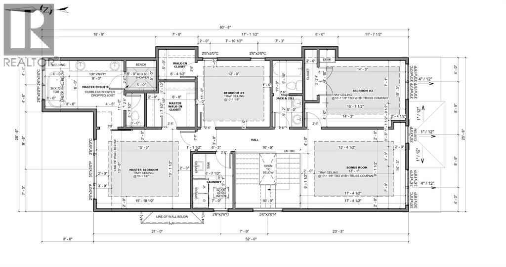
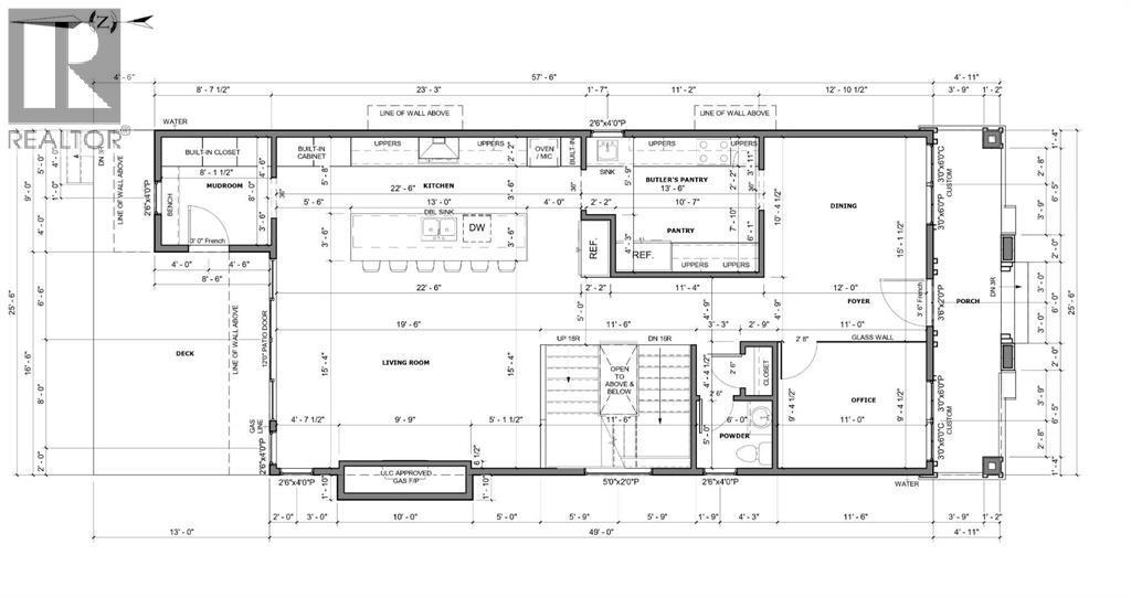
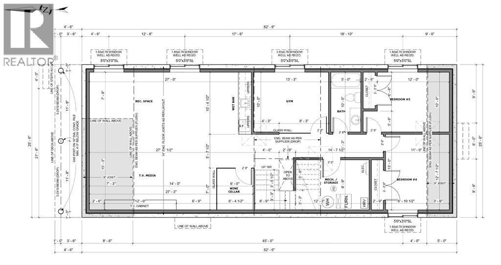
Rooms Dimension

RoomFloorDimension
BedroomBasement12.58 Ft x 11.00 Ft
BedroomBasement12.00 Ft x 10.00 Ft
3pc BathroomBasement10.00 Ft x 5.00 Ft
Living roomMain level19.50 Ft x 15.33 Ft
Dining roomMain level12.00 Ft x 12.00 Ft
KitchenMain level22.50 Ft x 10.00 Ft
OfficeMain level11.00 Ft x 10.00 Ft
2pc BathroomMain level.00 Ft x .00 Ft
Primary BedroomUpper Level15.50 Ft x 13.08 Ft
BedroomUpper Level14.25 Ft x 11.83 Ft
BedroomUpper Level12.00 Ft x 11.00 Ft
5pc BathroomUpper Level18.00 Ft x 8.00 Ft
4pc BathroomUpper Level11.00 Ft x 5.00 Ft

Disclaimer:

a

Listing data last updated date: 2026-03-15 05:25:48

a

Listing Agent: Jobanpreet Brar

Brokerage: eXp Realty