Daryl Carlson - 403-259-4141

 BACK  

Single Family in Calgary

$649,888.00
28 Harvest Oak Drive Northeast - MLS® #: A2290840
  • (187)
  • 144
  • 80
  • 5 Bedrooms
  • 3 Bathrooms
  • 1357 Sq Ft
avatar
Daryl Carlson
403-259-4141

Property Type

Single Family

Description

Welcome to the convenient neighborhood of Harvest Hills! This one owner, pet free, smoke free home has almost 1400 square feet on the main floor with endless potential! Nestled in the heart of the quiet, family-friendly neighborhood of Harvest Hills, this 5-bedroom, 3 full bathroom 1357 square foot bi-level home offers the perfect blend of space, location, and opportunity. The home has brand new asphalt shingles and complete vinyl siding replacement that was re-done due to the 2024 hail storm. Featuring vaulted ceilings over the main floor living room and open-concept kitchen with a skylight, center island, and adjacent dining area, the home is bright and inviting; a welcoming space for families and entertainers alike. From the dining area, step out onto the raised back deck, perfect for summer BBQs or relaxing evenings. The main floor boasts three well-sized bedrooms, including a spacious primary suite complete with a walk-in closet and a 4-piece ensuite bathroom that features a separate soaker tub and shower, making it a perfect retreat at the end of the day. The walkout basement of (builder developed) 501 SF of developed living space adds even more value, with rough-in for a gas fireplace and a new high efficiency furnace (2024). Completing the basement is a generous living room, 4-piece bathroom, and two additional bedrooms. Most importantly, there is space and flexibility to add a sixth bedroom or convert the basement into a legal secondary suite. The back lane provides space for additional parking if needed. This is an ideal property for investors or anyone ready to put in a bit of sweat equity to transform it into their dream home. With its flexible layout and strong bones, the renovation possibilities are truly endless. Located just minutes from nearby schools, new High School, shopping, and transit, this home is also close to Vivo Recreation Centre, Superstore, T&T Supermarket, Home Depot, a cinema, and more. Enjoy easy access to Stoney Trail, Deerfoot Tra il, and the airport, just a 10-minute drive away! Whether you're looking to invest, renovate, or settle into a welcoming community, this Harvest Hills gem is full of potential. Don’t miss your chance to make it yours! (id:6769

Property Details

Subarea
Harvest Hills

Lot
5069.8

Year Built
1994

Flooring
Carpeted,Linoleum

Parking Type
4

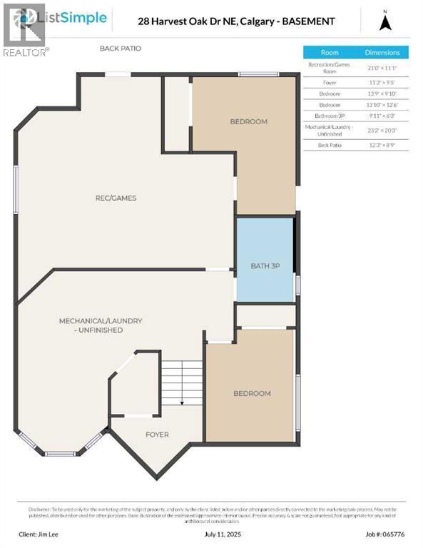
Rooms Dimension

RoomFloorDimension
Recreational, Games roomBasement21.00 Ft x 11.08 Ft
FoyerBasement11.25 Ft x 9.42 Ft
BedroomBasement13.75 Ft x 9.83 Ft
BedroomBasement13.83 Ft x 12.50 Ft
3pc BathroomBasement9.92 Ft x 6.25 Ft
FurnaceBasement23.17 Ft x 20.25 Ft
OtherMain level8.67 Ft x 8.08 Ft
KitchenMain level14.00 Ft x 14.33 Ft
PantryMain level3.42 Ft x 3.50 Ft
PantryMain level4.58 Ft x 3.00 Ft
Dining roomMain level8.83 Ft x 11.08 Ft
Living roomMain level15.42 Ft x 13.33 Ft
BedroomMain level11.17 Ft x 10.42 Ft
BedroomMain level12.00 Ft x 8.08 Ft
Primary BedroomMain level14.75 Ft x 10.25 Ft
OtherMain level7.00 Ft x 4.33 Ft
4pc BathroomMain level11.33 Ft x 5.42 Ft
OtherMain level7.00 Ft x 7.58 Ft
4pc BathroomMain level7.67 Ft x 5.00 Ft

Disclaimer:

a

Listing data last updated date: 2026-03-08 06:23:58

a

Listing Agent: Jim Lee

Brokerage: Century 21 Bravo Realty