Daryl Carlson - 403-259-4141

 BACK  

Single Family in Calgary

$754,900.00
133 Versant Rise Southwest - MLS® #: A2290341
  • (220)
  • 114
  • 114
  • 3 Bedrooms
  • 3 Bathrooms
  • 2023 Sq Ft
avatar
Daryl Carlson
403-259-4141

Property Type

Single Family

Description

YOU’VE DONE ENOUGH MAKING-DO. IT’S TIME FOR A HOME THAT FINALLY MEETS YOU AT YOUR LEVEL.This Gabriel model from Homes by Avi was built for people who are done compromising—on storage, flow, and the way a home should support real life. The main floor begins with a mudroom that connects directly to a WALK-THROUGH PANTRY, because groceries shouldn’t require a logistics plan. The kitchen delivers: 50" UPPERS, a chimney hoodfan, a BUILT-IN WALL OVEN, a GAS COOKTOP with griddle, and a flush island with a BREAKFAST BAR that actually seats people. QUARTZ COUNTERTOPS with a soft white marble look and subtle veining pair with creamy light wall tile and matte-black hardware for a finish that feels elevated without trying too hard.The dining area is built for loud holidays and full tables, while the great room anchors the space with a FIREPLACE FRAMED IN TILE WITH A CLASSIC MANTLE and full-height presence. With QUICK POSSESSION available, this could be the year you stop squeezing celebrations into a home that’s outgrown you.Upstairs, a CENTRAL BONUS ROOM creates breathing room between the primary and secondary bedrooms. Both secondary bedrooms include walk-in closets—a small detail that makes everyday life easier. The primary offers a generous WALK-IN CLOSET and a five-piece ensuite with a SOAKER TUB and TILE-AND-GLASS SHOWER.There’s also a true UPSTAIRS OFFICE with a door you can close, plus a WALK-IN LAUNDRY ROOM with space to sort, fold, and keep life from spilling into the hallway.Downstairs, the WALKOUT BASEMENT gives you room to grow, with a LOWER-LEVEL ENTRY stepping directly out to the backyard beneath the raised deck above. And that RAISED DECK? It extends your dining space outward and lifts you high enough for BETTER VIEWS and clear sightlines across the yard—perfect for summer evenings, morning coffee, or keeping an eye on what’s happening below.Located in Vermilion Hill at Alpine Park, this community is shaped by natural elevation, pathways, and long sou th and west views. It’s connected, forward-thinking, and designed to grow beautifully over time.If this already feels like a better fit than where you are now, COME SEE IT IN PERSON.• PLEASE NOTE: Photos are of a finished Showhome of the same model – fit and finish may differ on finished spec home. Interior selections and floorplans shown in photos. (id:6769

Property Details

Subarea
Alpine Park

Lot
300.94

Year Built
2026

Flooring
Carpeted,Vinyl Plank

Parking Type
4

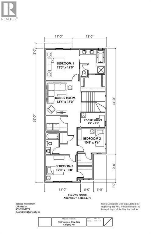
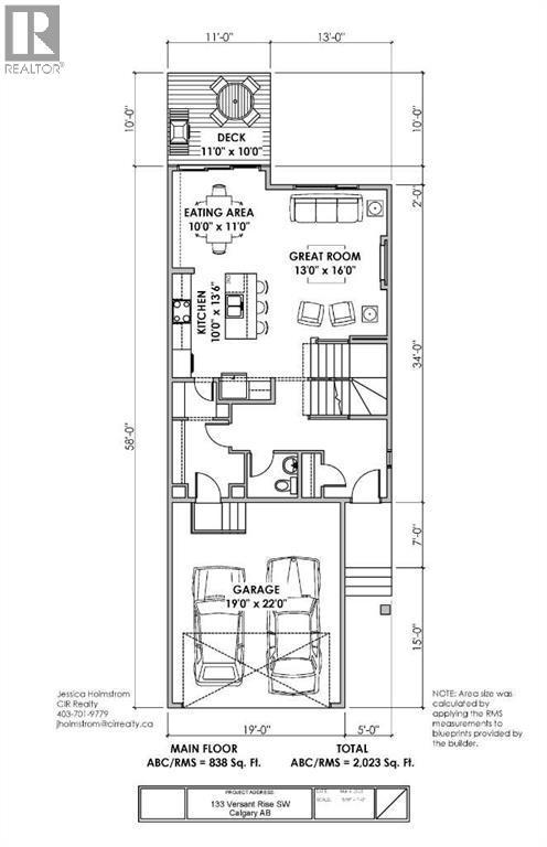
Rooms Dimension

RoomFloorDimension
OtherMain levelMeasurements not available
2pc BathroomMain levelMeasurements not available
OtherMain levelMeasurements not available
PantryMain levelMeasurements not available
OtherMain level13.50 Ft x 10.00 Ft
OtherMain level11.00 Ft x 10.00 Ft
Great roomMain level16.00 Ft x 13.00 Ft
Bonus RoomUpper Level13.00 Ft x 13.33 Ft
Laundry roomUpper LevelMeasurements not available
3pc BathroomUpper LevelMeasurements not available
BedroomUpper Level10.00 Ft x 12.00 Ft
OtherUpper LevelMeasurements not available
BedroomUpper Level9.50 Ft x 10.67 Ft
OtherUpper LevelMeasurements not available
OfficeUpper Level5.75 Ft x 9.33 Ft
Primary BedroomUpper Level12.00 Ft x 13.00 Ft
5pc BathroomUpper Level.00 Ft x .00 Ft
OtherUpper Level.00 Ft x .00 Ft

Disclaimer:

a

Listing data last updated date: 2026-03-15 05:08:04

a

Listing Agent: Jessica D. Holmstrom

Brokerage: CIR Realty