Daryl Carlson - 403-259-4141

 BACK  

Vacant Land in Calgary

$649,999.00
260 Rock Lake Drive Northwest - MLS® #: A2289030
  • (200)
  • 234
  • 227
  • 0 Bedrooms
  • 0 Bathrooms
  • - Sq Ft
avatar
Daryl Carlson
403-259-4141

Property Type

Vacant Land

Description

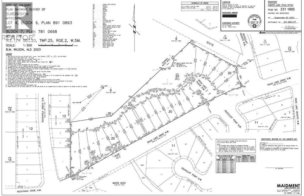
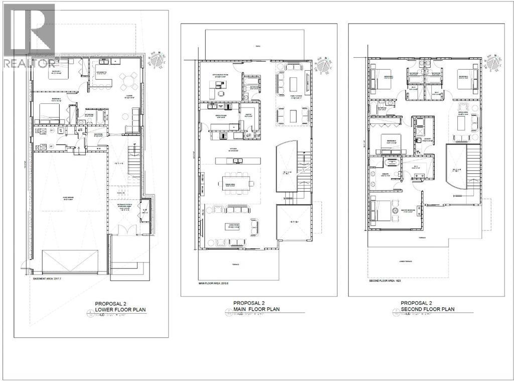
6512 sq/ft Walkout Lot, No Building commitment, bring your own builder. 3 lots available, lot 17, 18 & 12. Build your dream custom home 3000-5000 sq/ft on an expansive 6512 sq ft (43 ft Front, 151 ft depth) Estate lot in sought-after Rocky Ridge, NW Calgary, perfectly positioned across from a tranquil pond and backing onto green space and trees. This rare homesite offers true four-season serenity, direct access to pathways, and sweeping Rocky Mountain views that frame your backyard and fill your main living spaces with natural beauty. Set high on Calgary’s northwest ridge, your custom design can take full advantage of the rolling landscape—imagine a sun-filled great room with wall-to-wall windows, a gourmet kitchen and a covered deck overlooking the treetops. Morning walks around the wetland ponds, evenings watching the sunset over the Rockies, and easy access to Rocky Ridge’s extensive pathways, parks, and Ranch Centre amenities create an unparalleled lifestyle that feels like a retreat while still being minutes from major routes, C-Train access, and northwest shopping and services. (id:6769

Property Details

Subarea
Rocky Ridge

Lot
6512.17

Disclaimer:

a

Listing data last updated date: 2026-03-01 05:06:43

a

Listing Agent: Ahmed Arshad

Brokerage: REMAX Innovations