Daryl Carlson - 403-259-4141

 BACK  

Single Family in Calgary

$475,500.00
150 Martinbrook Road Northeast - MLS® #: A2285710
  • (153)
  • 210
  • 56
  • 3 Bedrooms
  • 2 Bathrooms
  • 1084 Sq Ft
avatar
Daryl Carlson
403-259-4141

Property Type

Single Family

Description

Welcome to your “I am Home” feeling. A wonderful single detached home to reside or as an investment property. The floor plan has a wide living and kitchen space designed for easy accessibilities. The bathroom layout is for easy access in the 2nd and lower level. Your dining area and kitchen are meant for you to enjoy or entertain and see your children play in your very own private backyard. Your backyard with a deck has plenty of space for entertainment and get together with your friends and family. Your garage is a mechanic dream, there is enough space for your cars, toys, and work benches. Your roof was partially completed in 2021. All the windows were replaced in 2018. The garage was rebuilt in 2019. New hooded microwave, washer, back deck built, stove/oven, shed, and gazebo were installed in 2024. The side and back fence were replaced in 2024, along with the gates. The Martindale Community is minutes away from major amenities such as bus stops and train stations, shopping and grocery centres, restaurants, religious and cultural centres, schools, and many more. What are you waiting for? It’s time for you to move into your home. (id:6769

Property Details

Subarea
Martindale

Lot
303

Year Built
1989

Flooring
Carpeted,Laminate,Vinyl Plank

Parking Type
3

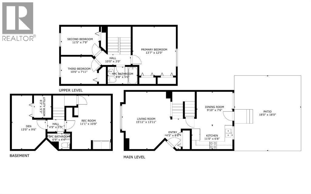
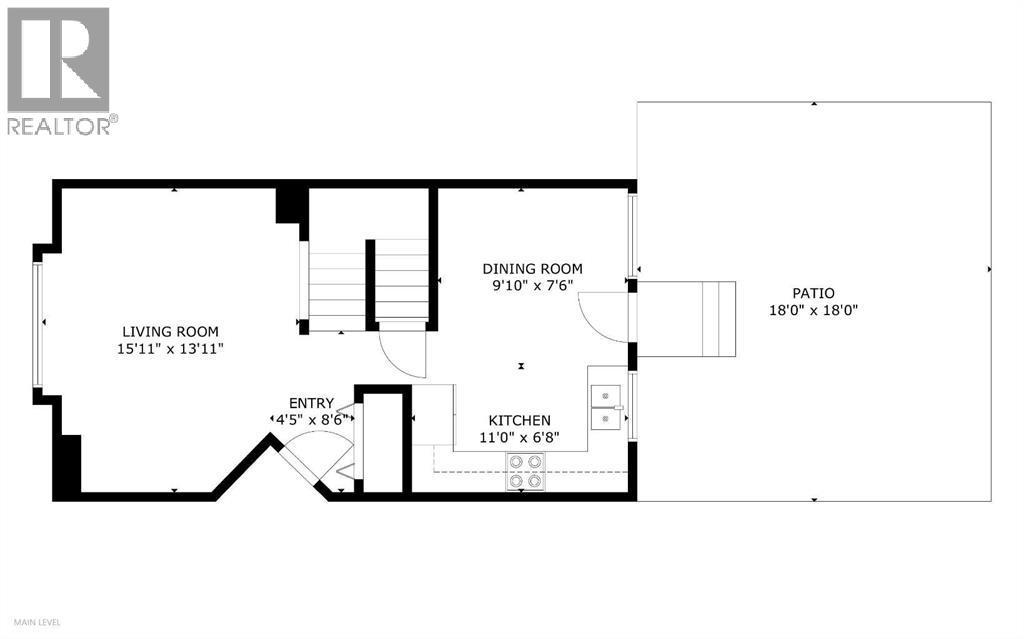
Rooms Dimension

RoomFloorDimension
Primary BedroomSecond level13.58 Ft x 12.00 Ft
BedroomSecond level11.42 Ft x 7.75 Ft
BedroomSecond level10.50 Ft x 7.92 Ft
4pc BathroomSecond level8.67 Ft x 5.00 Ft
Recreational, Games roomLower level11.08 Ft x 10.67 Ft
DenLower level13.00 Ft x 9.50 Ft
FurnaceLower level6.25 Ft x 5.25 Ft
Laundry roomLower level5.08 Ft x 4.33 Ft
3pc BathroomLower level6.75 Ft x 4.33 Ft
KitchenMain level11.00 Ft x 6.67 Ft
Living roomMain level15.92 Ft x 13.92 Ft
Dining roomMain level9.83 Ft x 7.50 Ft

Disclaimer:

a

Listing data last updated date: 2026-03-06 06:57:19

a

Listing Agent: Daniel Mendoza

Brokerage: REMAX Innovations