Daryl Carlson - 403-259-4141

 BACK  

Loading map...

Industrial in Calgary

$12.00
10099 15 Street Northeast - MLS® #: A2230957
  • (163)
  • 123
  • 62
  • 0 Bedrooms
  • 0 Bathrooms
  • 26736 Sq Ft
avatar
Daryl Carlson
403-259-4141

Property Type

Industrial

Description

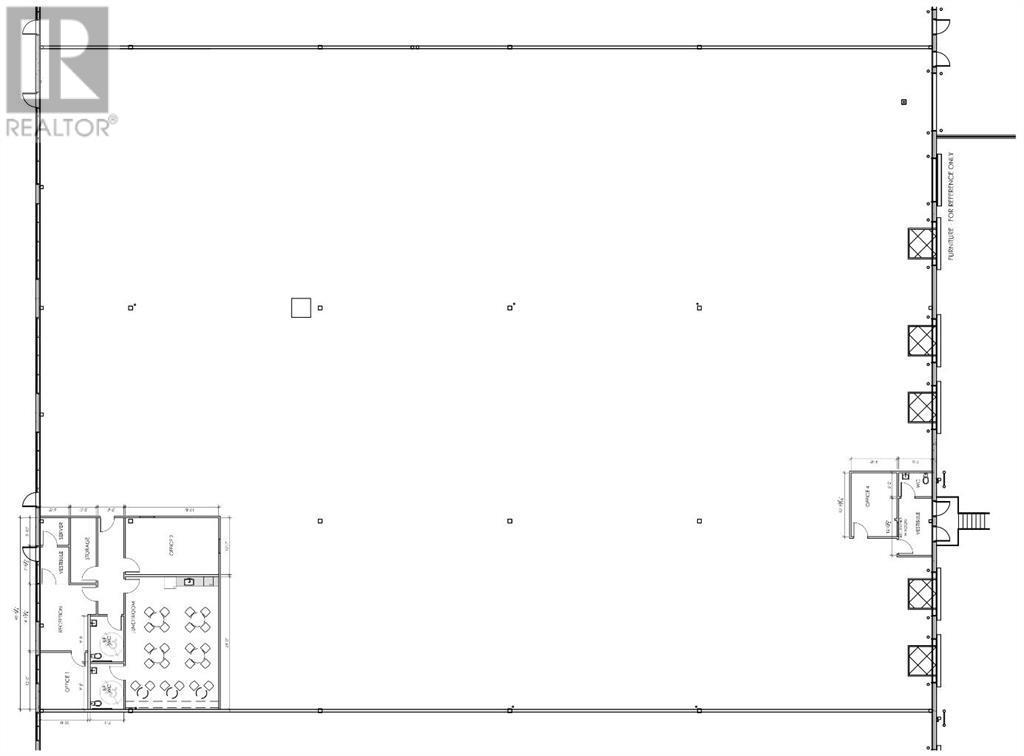
Rare and immediate opportunity for a long-term sublease in a modern industrial building close to Deerfoot Trail and the Calgary Airport. The bay measures 26,736 square feet, of which 1,680 square feet is office and 25,056 square feet is warehouse area. The Net Rent is far below the current market rate for newer warehouse properties in the NE, particularly given the highly desirable features of this unit which also include dock and drive-in loading doors, LED lighting on motion sensors, charging area for forklifts, an extremely high electrical supply, and hydraulic dock levelers. Sublease term expires May 31, 2030. Operating Costs for 2025 are $6.38 per square foot. AUTOMOTIVE AND RECREATIONAL USES WILL NOT BE CONSIDERED. (id:6769

Property Details

Subarea
Stoney 2

Lot
0

Year Built
2018

Disclaimer:

a

Listing data last updated date: 2025-06-19 23:51:28

a

Listing Agent: Ilya Raykhlin

Brokerage: RE/MAX House of Real Estate