Daryl Carlson - 403-259-4141

 BACK  

Single Family in Calgary

$826,400.00
421 Corner Glen Way Northeast - MLS® #: A2273963
  • (93)
  • 113
  • 136
  • 4 Bedrooms
  • 3 Bathrooms
  • 2633 Sq Ft
avatar
Daryl Carlson
403-259-4141

Property Type

Single Family

Description

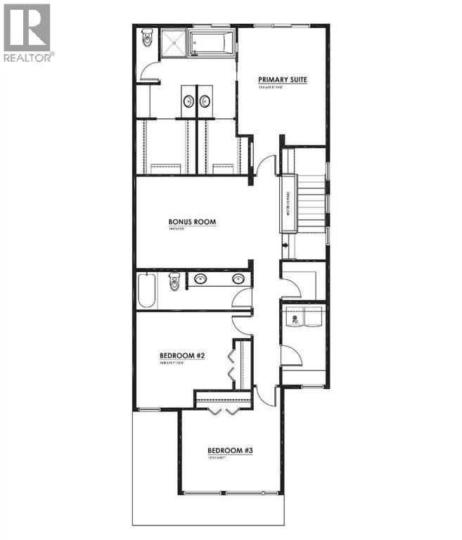
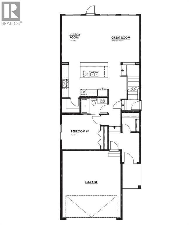
*SIDE ENTRANCE*BRAND NEW HOME*QUICK POSSESSION*10 SOLAR PANELS*MAIN FLOOR BEDROOM SUITE* Amazing Design! Unique in Features! Over 2600+ SF of Stylish design welcomes you into this stunning FOUR BEDROOM and 3 FULL BATH home located in the beautiful community of Cornerstone. You're welcome to a thoughtfully designed living space that maximizes every inch while offering an abundance of space for your whole family to enjoy! The Gorgeous OPEN FLOOR PLAN invites you in to discover a lovely kitchen that boasts beautiful QUARTZ countertops, a sleek stainless steel Whirlpool appliance package with an upgraded electric stove, a French Door fridge with/ Internal Water/Ice, a Microwave and a Broan power pack built-in cabinet hood fan. A large walk-in corner pantry and beautiful extended oversized flush centre Island that overlooks the generous great room and dining room-Ideal for all entertaining. A sizeable 4TH BEDROOM on the main floor, perfect for a large family or working from home as you have a full bath adjacent to the functional space with a private pocket door access. Upstairs, you will discover THREE MORE BEDROOMS with a Primary Bedroom boasting a 5pc en suite with dual vanities, a stand-alone shower, an oversized bath and two large walk-in closets. A centralized BONUS ROOM offers an additional living space and another full bath, plus 2nd-floor laundry with a window feature, completing the level. ADDITIONAL FEATURES: Fit and Finish SELECT, professionally designed Light Wood Palette, rear patio door, convenient side entrance, raised 9' basement ceiling height, and 3-piece rough-in plumbing. Situated close to the International Airport with quick access to both Deer Foot Trail and Stoney Trail, along with new amenities being added to the community continuously, you will enjoy all Cornerstone has to offer. A brand new build with all of the difficult decisions decided along with a functional and intelligent floorplan for a large family. Perfect!! (id:6769

Property Details

Subarea
Cornerstone

Lot
907

Year Built
2025

Flooring
Carpeted,Vinyl Plank

Parking Type
4

Rooms Dimension

RoomFloorDimension
Living roomMain level13.52 Ft x 15.00 Ft
Dining roomMain level11.32 Ft x 15.00 Ft
BedroomMain level12.24 Ft x 11.08 Ft
KitchenMain level16.57 Ft x 10.50 Ft
3pc BathroomMain level4.82 Ft x 8.76 Ft
Laundry roomUpper Level11.17 Ft x 6.00 Ft
Primary BedroomUpper Level15.42 Ft x 14.01 Ft
BedroomUpper Level12.67 Ft x 12.50 Ft
Bonus RoomUpper Level14.67 Ft x 12.00 Ft
5pc BathroomUpper Level12.34 Ft x 13.52 Ft
OtherUpper Level6.83 Ft x 7.75 Ft
OtherUpper Level8.33 Ft x 7.75 Ft
BedroomUpper Level12.92 Ft x 10.58 Ft
4pc BathroomUpper LevelMeasurements not available

Disclaimer:

a

Listing data last updated date: 2026-03-10 04:53:37

a

Listing Agent: Michael R. Laprairie

Brokerage: Jayman Realty Inc.