Daryl Carlson - 403-259-4141

 BACK  

Single Family in Calgary

$270,900.00
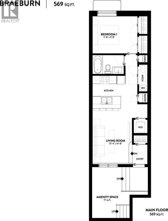
135 Mahogany Parade Southeast - MLS® #: A2288530
  • (208)
  • 228
  • 246
  • 1 Bedrooms
  • 1 Bathrooms
  • 548 Sq Ft
avatar
Daryl Carlson
403-259-4141

Property Type

Single Family

Description

Welcome to the Braeburn at ZEN Mahogany, a stylish, energy-efficient townhome built by a Net Zero builder and constructed beyond the 2030 building code for superior performance and long-term sustainability. Located in one of Calgary’s most sought-after lake communities, this thoughtfully designed 1-bedroom, 1-bath home offers smart, modern living.Built with triple-pane windows, advanced insulation, and high-performance construction standards, this home delivers exceptional comfort while keeping utility costs low. The bright, open-concept layout showcases durable luxury vinyl plank flooring throughout the main living areas, while the bedroom features plush carpet for added warmth and comfort. The contemporary kitchen features quartz countertops and a 6-piece Whirlpool appliance package, blending style and functionality. Photos are representative. (id:6769

Property Details

Subarea
Mahogany

Lot
0

Year Built
2026

Flooring
Carpeted,Vinyl Plank

Parking Type
1

Rooms Dimension

RoomFloorDimension
Living roomMain level10.33 Ft x 14.67 Ft
4pc BathroomMain level.00 Ft x .00 Ft
BedroomMain level11.67 Ft x 9.67 Ft

Disclaimer:

a

Listing data last updated date: 2026-02-28 04:39:56

a

Listing Agent: David Lofthaug

Brokerage: Bode Platform Inc.