Daryl Carlson - 403-259-4141

 BACK  

Single Family in Calgary

$869,000.00
4827 22 Avenue Northwest - MLS® #: A2286065
  • (174)
  • 126
  • 60
  • 4 Bedrooms
  • 4 Bathrooms
  • 1814 Sq Ft
avatar
Daryl Carlson
403-259-4141

Property Type

Single Family

Description

Welcome to this beautifully designed infill in the heart of Montgomery - one of Calgary’s desirable inner-city communities. Perfectly positioned on a quiet street with a sunny south-facing backyard, this home is a bit of a twist from other modern luxury infills. Step inside to discover a bright, open-concept main floor thoughtfully designed and built by Westview builders, with beautiful finishes, stylish fixtures, and quality craftsmanship throughout. The freshly painted space is perfect for both entertaining and comfortable family living. The chef-inspired kitchen features premium appliances, quartz countertops, amazing storage and a large island that anchors the home beautifully. Engineered hardwood floors stretch across the main floor encompassing the dining area and family room. Tons of natural light streams into this home filling the space and lighting up the natural stone fireplace that creates that cozy feeling. Outside, enjoy the sun-drenched south backyard - ideal for summer barbecues, gardening, or simply relaxing in your own private outdoor oasis with no-maintenance landscaping. A private rear entrance takes you from the house to the backyard and your double car garage. Upstairs, you’ll find 3 spacious bedrooms, a high vaulted ceiling with a quaint little spot for an office desk or reading nook! A stunning primary retreat complete with a spa-like ensuite and generous walk-in closet - your own private sanctuary. The fully finished walk-out basement is a standout feature, offering incredible versatility. With its separate entrance, living area, bedroom, full bathroom and kitchen, it’s perfectly set up for extended family, guests, a live-in nanny or just an exceptional entertainment space. The layout which also includes a large storage space provides privacy and functionality. Located just minutes from schools, parks, the Bow River pathway system, Market Mall, Foothills and Children’s Hospital, and a quick commute to downtown, this Montgomery gem delivers th e perfect balance of convenience and lifestyle. Prime location. Flexible living. This is inner-city living at its finest. (id:6769

Property Details

Subarea
Montgomery

Lot
279

Year Built
2013

Flooring
Carpeted,Hardwood,Tile

Parking Type
2

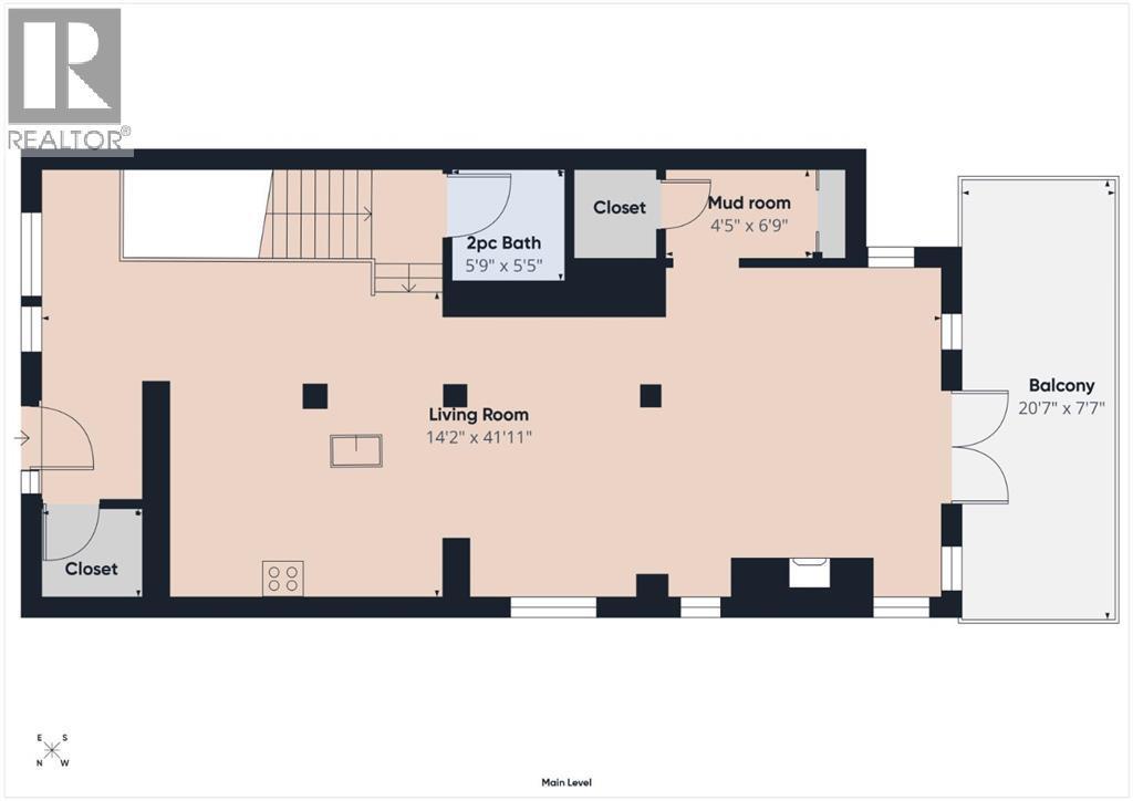
Rooms Dimension

RoomFloorDimension
Living roomLower level19.00 Ft x 10.42 Ft
BedroomLower level9.92 Ft x 11.08 Ft
KitchenLower level19.00 Ft x 6.83 Ft
3pc BathroomLower levelMeasurements not available
Living roomMain level14.17 Ft x 24.58 Ft
Dining roomMain level14.17 Ft x 8.75 Ft
KitchenMain level14.17 Ft x 8.58 Ft
2pc BathroomMain levelMeasurements not available
Primary BedroomUpper Level14.00 Ft x 15.25 Ft
4pc BathroomUpper LevelMeasurements not available
BedroomUpper Level10.25 Ft x 9.08 Ft
BedroomUpper Level10.25 Ft x 8.92 Ft
4pc BathroomUpper LevelMeasurements not available

Disclaimer:

a

Listing data last updated date: 2026-03-15 05:17:09

a

Listing Agent: Rod Burriss

Brokerage: RE/MAX First