Daryl Carlson - 403-259-4141

 BACK  

Single Family in Calgary

$789,000.00
229 Edith Road Northwest - MLS® #: A2283007
  • (61)
  • 144
  • 160
  • 4 Bedrooms
  • 3 Bathrooms
  • 2114 Sq Ft
avatar
Daryl Carlson
403-259-4141

Property Type

Single Family

Description

Welcome to this beautiful 2023 built fully upgraded 4-bedroom plus Den, 2.5 washrooms, 2113 square feet house in Glacier Ridge. As you enter, you are invited to a good size office/den and half bath on the other side. The high ceiling open concept living room with lots of natural lights and is great for entertaining. The big kitchen with floor to ceiling cabinetry with a Grand kitchen Island, Upgraded build in stainless steel appliances a pantry. The dining area is located right next to the kitchen and has a patio door with entry to the back yard. The beautiful stained railing with iron spindles lead to upstairs where you will find huge bonus room and a window bringing in natural light. Upstairs you will find a master ensuites with primary master with its own 5 piece ensuite and 3 additional bedrooms and a 5 piece bath on the separate sides of the level for additional privacy and their own good size closets. This floor is completed with the convenient laundry room with front load washer/dryer. A few upgrades to mention here with quartz for all countertops, tiles in wet areas, pot lights throughout, and luxury vinyl planks on the main floor. The untouched walk out basement awaiting your design. Currently tenanted and they have lived here since newly built, first set of tenants with lease ending July 2026. Hoping to stay! Please book your showing today to view this property. (id:6769

Property Details

Subarea
Glacier Ridge

Lot
306.27

Year Built
2024

Flooring
Carpeted,Ceramic Tile,Vinyl Plank

Parking Type
4

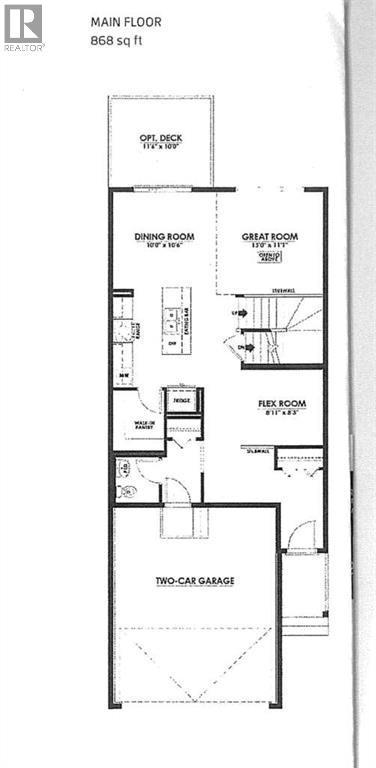
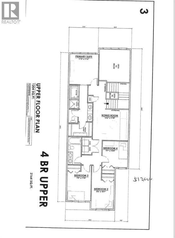
Rooms Dimension

RoomFloorDimension
Living roomMain level11.67 Ft x 11.17 Ft
Dining roomMain level11.25 Ft x 10.67 Ft
KitchenMain level10.17 Ft x 13.42 Ft
2pc BathroomMain level4.67 Ft x 4.92 Ft
OfficeMain level12.92 Ft x 8.25 Ft
5pc BathroomUpper Level9.00 Ft x 13.75 Ft
Laundry roomUpper Level3.33 Ft x 6.75 Ft
Bonus RoomUpper Level13.50 Ft x 11.42 Ft
BedroomUpper Level9.58 Ft x 10.00 Ft
BedroomUpper Level8.58 Ft x 10.92 Ft
BedroomUpper Level9.00 Ft x 11.08 Ft
Primary BedroomUpper Level11.00 Ft x 11.50 Ft
5pc BathroomUpper Level4.92 Ft x 10.42 Ft

Disclaimer:

a

Listing data last updated date: 2026-03-10 04:48:07

a

Listing Agent: Kristy Fa

Brokerage: YMK Real Estate & Management Inc.