Daryl Carlson - 403-259-4141

 BACK  

Single Family in Calgary

$1,024,900.00
3511 42 Street Southwest - MLS® #: A2270058
  • (163)
  • 234
  • 236
  • 4 Bedrooms
  • 4 Bathrooms
  • 1905 Sq Ft
avatar
Daryl Carlson
403-259-4141

Property Type

Single Family

Description

**JOIN US AT OUR OPEN HOUSE SAT. & SUN, 12-2 PM.** Timeless design, modern comfort, and everyday function come together on a quiet tree-lined street in this stunning new home in GLENBROOK. With expansive windows, warm natural materials, & elevated finishes throughout, it’s crafted for family living in one of Calgary’s most established neighbourhoods. Step in from the covered entry to a bright foyer with sight lines across the open main floor, where light oak hardwood carries seamlessly through the principal rooms. The front dining room is anchored by a custom feature wall, setting the tone for the thoughtful millwork found throughout. An elevated powder room greets you upon entering & provides privacy & convenience through a hidden door. At the heart of the home, the chef-inspired kitchen blends beauty with purpose—two full pantries, crisp white uppers over matching oak lowers, a striking waterfall quartz island, exposed beams & professional KitchenAid appliances including a flat gas cooktop, built-in wall oven, & French-door fridge. Clean lines, elegant lighting, and generous prep space make this a true culinary hub. A well-designed butlers pantry & mudroom with custom built-ins keeps everyday essentials organized, The floor plan flows naturally into the inviting living room, where custom coffered ceilings & built-ins frame a cozy gas fireplace & create the perfect space to unwind or gather with friends & family. Large windows and an 8’ sliding patio door pull in west light and open directly to the backyard for easy indoor/outdoor living. Step outside to a sun-soaked west-facing backyard, complete with a large rear deck & BBQ gas line, ready for late summer evenings & weekend gatherings. A double garage plus a striking exterior finished in stucco & Hardie-board siding complete this exceptional property. Head up the alluring hardwood stairs to find more of the same hardwood floors & a thoughtfully placed built-in desk that creates the perfect homework zone or de dicated home office. A spacious laundry room with quartz countertop, pre-wash sink, plus extra storage ensures the second floor is as practical as it is comfortable.Retreat to the serene primary suite, where vaulted ceilings lift the space and morning sun pours through oversized windows. The ensuite reads like a private spa, offering a massive walk-in shower with body jets, (roughed in steam shower), double sinks, a deep free-standing soaker tub, & beautifully curated tile throughout. A custom walk-in closet completes the sanctuary. Two additional bedrooms sit down the hall. One even features its own custom built in closet.The lower level flexes effortlessly with family life—an expansive Rec room with custom built-in TV wall, a generous flex/rec area with a full wet bar, plus an additional bedroom and full bath, ideal for guests, teens, or extended family. Located close to schools, parks, playgrounds, shopping, transit, & major routes—offering a perfect blend of community charm & everyday convenience. (id:6769

Property Details

Subarea
Glenbrook

Lot
2871.31

Year Built
2025

Flooring
Carpeted,Hardwood,Tile

Parking Type
4

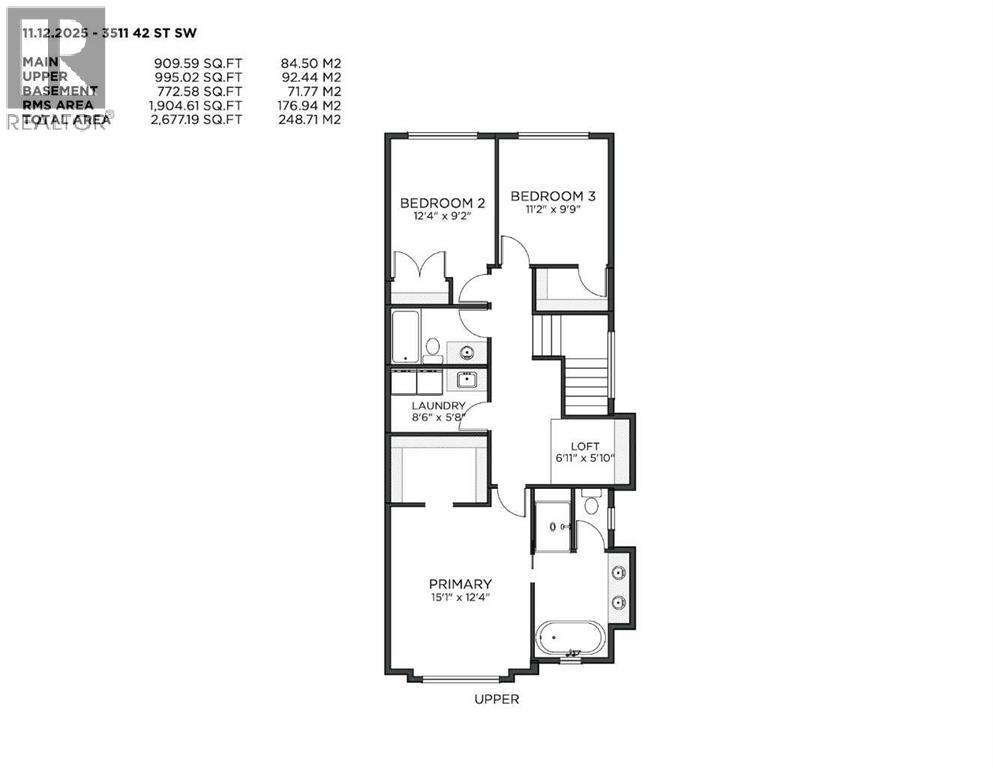
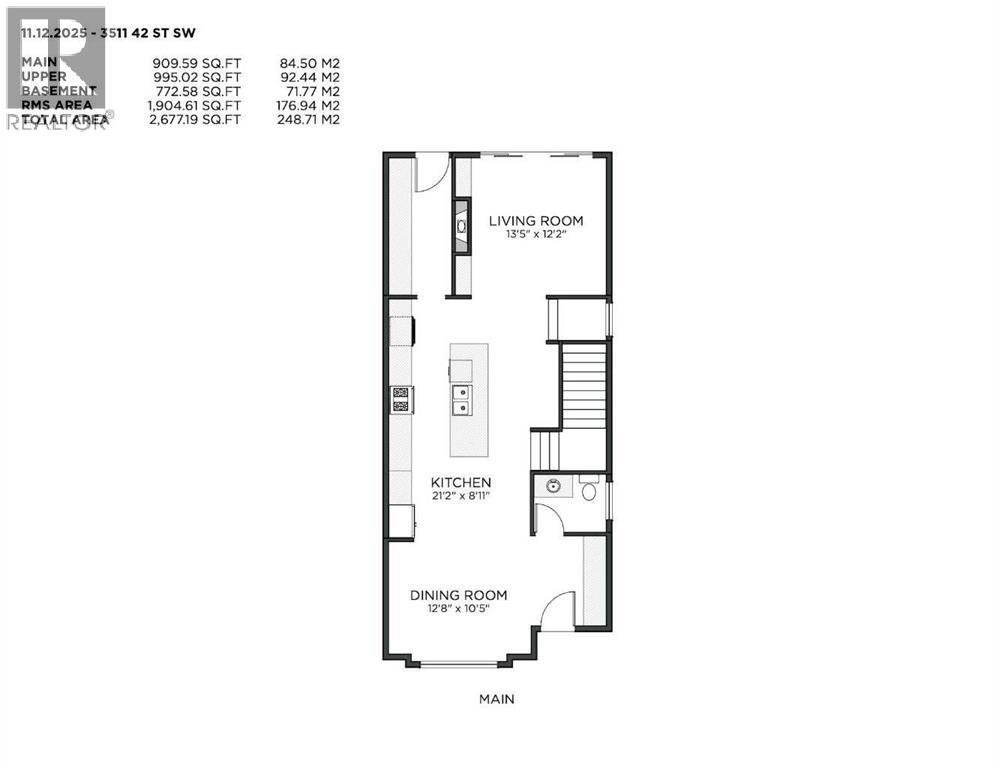
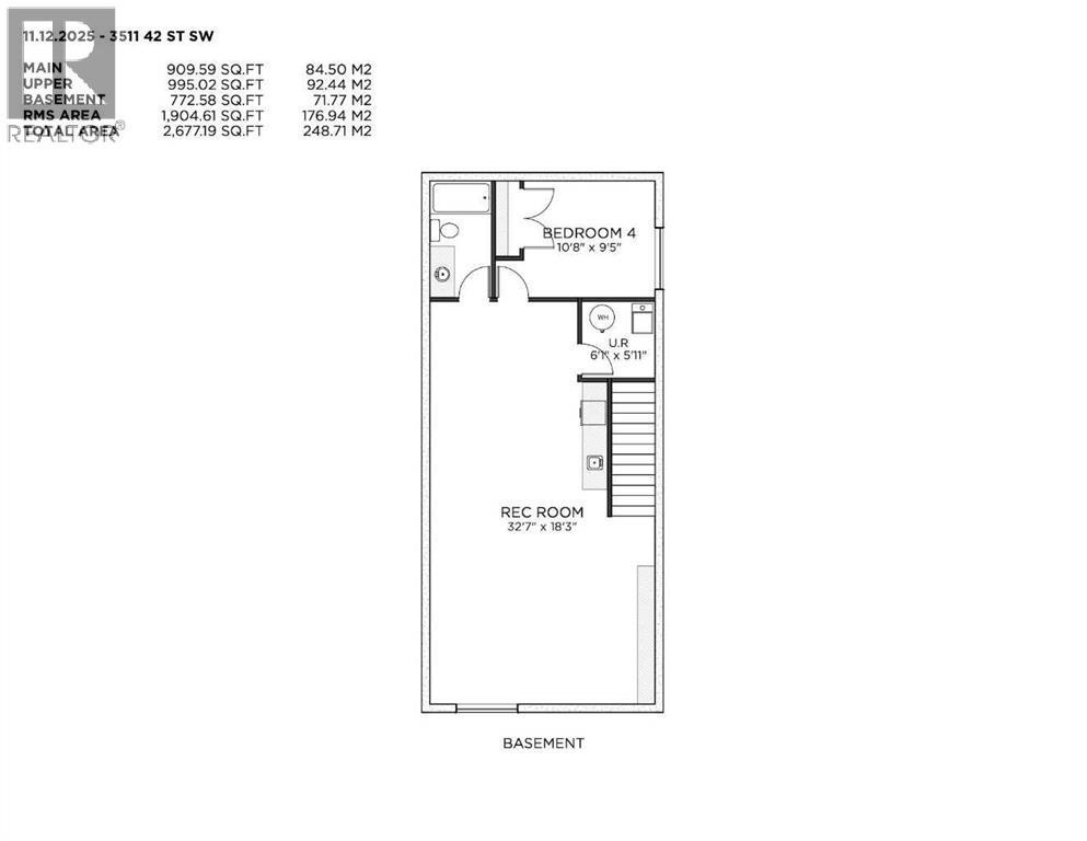
Rooms Dimension

RoomFloorDimension
Recreational, Games roomBasement23.58 Ft x 18.00 Ft
OtherBasement8.67 Ft x 2.17 Ft
BedroomBasement10.67 Ft x 9.42 Ft
4pc BathroomBasement9.42 Ft x 4.92 Ft
FurnaceBasement6.08 Ft x 5.92 Ft
KitchenMain level21.17 Ft x 8.92 Ft
OtherMain level12.67 Ft x 10.42 Ft
Living roomMain level13.42 Ft x 12.17 Ft
2pc BathroomMain level6.25 Ft x 5.08 Ft
OtherMain level12.17 Ft x 5.42 Ft
LoftUpper Level6.92 Ft x 5.83 Ft
Primary BedroomUpper Level15.08 Ft x 12.33 Ft
BedroomUpper Level12.33 Ft x 9.17 Ft
BedroomUpper Level11.17 Ft x 9.75 Ft
4pc BathroomUpper Level8.50 Ft x 4.92 Ft
5pc BathroomUpper Level14.92 Ft x 8.50 Ft
Laundry roomUpper Level8.50 Ft x 5.67 Ft

Disclaimer:

a

Listing data last updated date: 2026-02-01 04:12:54

a

Listing Agent: Stirling G. Karlsen

Brokerage: Real Broker