Daryl Carlson - 403-259-4141

 BACK  

Single Family in Calgary

$1,385,000.00
6701 Laird Court Southwest - MLS® #: A2281673
  • (116)
  • 219
  • 55
  • 4 Bedrooms
  • 4 Bathrooms
  • 2287 Sq Ft
avatar
Daryl Carlson
403-259-4141

Property Type

Single Family

Description

OPEN HOUSE SATURDAY JANUARY 31ST 12-2 PM. In Lakeview’s Village, a neighbourhood known for its strong sense of community and established character, this home is defined by thoughtful updates and considered design. Set on a generous lot surrounded by mature greenery, the home offers a quiet, confident presence from the moment you arrive. Updated windows and refreshed exterior siding create a crisp first impression that feels both current and timeless. Inside, the main floor was renovated in the mid-2000s with an eye toward flow and function. Living, dining, and kitchen spaces connect naturally while remaining well defined, allowing light to move easily throughout the day. The result is a layout that feels composed and practical, equally suited to everyday routines and relaxed gatherings. A dedicated main-level office provides a calm, purposeful workspace, ideal for focused mornings, reading, or working from home. Upstairs, four bedrooms offer flexibility for growing families, guests, or creative use, rooms that adapt easily as life changes. It’s a floor plan that simply makes sense: generous without excess, comfortable without compromise. The fully finished basement expands the home’s livable footprint with a generous recreation space - ideal for movie nights, games, or relaxed evenings in, along with a 2-piece bath and dedicated storage for the practical details of everyday life. The oversized backyard becomes an extension of the living space. There’s room to garden, host summer dinners, or let kids and pets roam freely. And then there’s the setting. Lakeview is beloved for the way it balances city access with nature. Minutes from North Glenmore Park, the Glenmore Reservoir pathways, and Weaselhead Flats, weekends naturally fill with walking, cycling, paddling, and time outside. Schools are close, neighbours know one another, and daily errands remain easy. Downtown is a short drive away, yet the neighbourhood itself feels calm and grounded, a rare combination. It’ s the kind of place where people settle in. Where homes are cared for, streets feel familiar, and community quietly shapes everyday life. A well-composed home on a beautiful lot, in one of Calgary’s most cherished pockets. This is Lakeview living at its most effortless and inviting. (id:6769

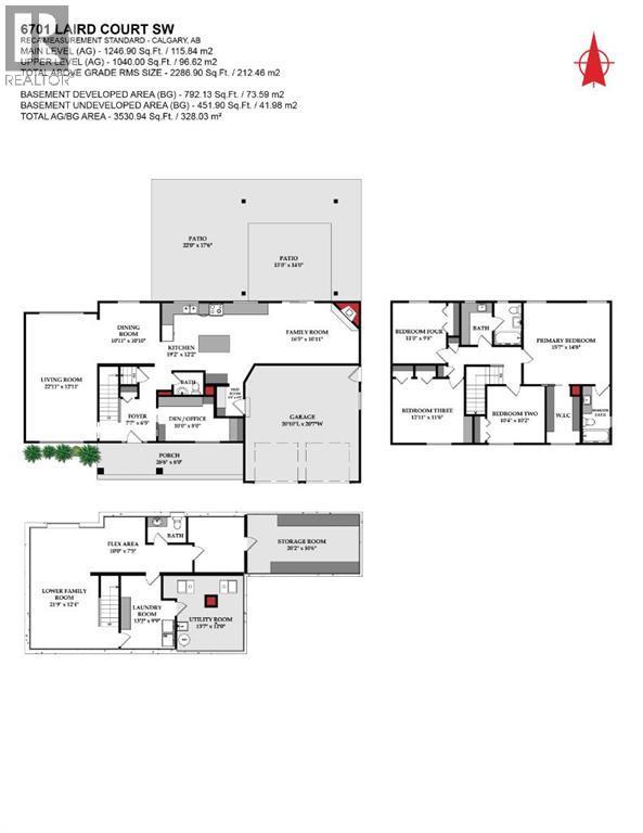
Property Details

Subarea
Lakeview

Lot
1159

Year Built
1966

Flooring
Carpeted,Hardwood,Linoleum,Tile

Parking Type
6

Rooms Dimension

RoomFloorDimension
Family roomBasement21.75 Ft x 12.33 Ft
OtherBasement10.00 Ft x 7.42 Ft
StorageBasement20.17 Ft x 10.50 Ft
Laundry roomBasement13.17 Ft x 9.75 Ft
2pc BathroomBasement7.00 Ft x 4.67 Ft
FurnaceBasement13.58 Ft x 12.00 Ft
Living roomMain level22.08 Ft x 12.92 Ft
Family roomMain level16.42 Ft x 10.92 Ft
KitchenMain level19.17 Ft x 12.17 Ft
Dining roomMain level10.92 Ft x 10.83 Ft
FoyerMain level7.58 Ft x 6.42 Ft
OtherMain level5.33 Ft x 4.75 Ft
DenMain level10.00 Ft x 8.00 Ft
2pc BathroomMain level5.33 Ft x 4.00 Ft
Primary BedroomUpper Level15.58 Ft x 14.67 Ft
OtherUpper Level10.17 Ft x 6.00 Ft
4pc BathroomUpper Level10.17 Ft x 4.92 Ft
BedroomUpper Level10.33 Ft x 10.17 Ft
BedroomUpper Level12.92 Ft x 11.50 Ft

Disclaimer:

a

Listing data last updated date: 2026-02-01 04:47:04

a

Listing Agent: Kelsey Jones

Brokerage: CIR Realty