Daryl Carlson - 403-259-4141

 BACK  

Single Family in Airdrie

$534,500.00
117 Highview Gate Southeast - MLS® #: A2280879
  • (72)
  • 87
  • 64
  • 4 Bedrooms
  • 4 Bathrooms
  • 1438 Sq Ft
avatar
Daryl Carlson
403-259-4141

Property Type

Single Family

Description

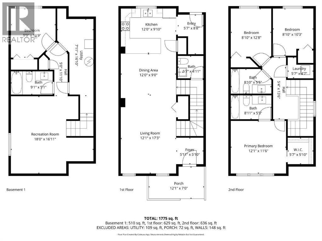
Welcome to this beautiful half duplex located in the desirable community of Lanark. Thoughtfully finished with durable Hardie Board siding, this bright, east-facing home is filled with natural light from large windows that highlight the luxury vinyl plank flooring throughout the main floor.The open-concept layout offers a seamless flow between the living room, dining area, and kitchen, making the space both functional and inviting. Located at the back of the home, the kitchen features quartz countertops throughout, finished with a stylish waterfall edge detail that adds a clean, modern touch. A convenient half bath is located on the landing leading down to the lower level.Upstairs, you’ll find three well-sized bedrooms, two full bathrooms, and the convenience of upper-level laundry. The primary bedroom includes a walk-in closet and a private 4-piece ensuite, creating a comfortable and practical retreat.The fully finished basement extends your living space and includes a comfortable family room, a fourth bedroom, and a full bathroom—perfect for guests, teens, or additional living space.Ideally situated just off 40 Avenue, this home offers quick access to Highway 2, making commuting into Calgary easy while still enjoying everything this growing community has to offer. (id:6769

Property Details

Subarea
Lanark

Lot
245.2

Year Built
2021

Flooring
Carpeted,Tile,Vinyl Plank

Parking Type
2

Rooms Dimension

RoomFloorDimension
Recreational, Games roomBasement16.08 Ft x 11.83 Ft
BedroomBasement10.25 Ft x 9.67 Ft
4pc BathroomBasement4.92 Ft x 9.08 Ft
KitchenMain level10.58 Ft x 12.58 Ft
Dining roomMain level9.08 Ft x 12.58 Ft
Living roomMain level16.42 Ft x 12.83 Ft
2pc BathroomMain level5.08 Ft x 4.75 Ft
Laundry roomUpper Level4.75 Ft x 5.17 Ft
Primary BedroomUpper Level12.00 Ft x 12.92 Ft
BedroomUpper Level10.17 Ft x 8.92 Ft
BedroomUpper Level10.25 Ft x 9.50 Ft
4pc BathroomUpper Level4.92 Ft x 9.33 Ft
4pc BathroomUpper Level4.92 Ft x 9.42 Ft

Disclaimer:

a

Listing data last updated date: 2026-01-26 04:01:29

a

Listing Agent: Amanda Van Der Linden

Brokerage: Real Broker