Daryl Carlson - 403-259-4141

 BACK  

Other in Calgary

$605,000.00
1118 12 Avenue Southwest - MLS® #: A2280718
  • (170)
  • 113
  • 187
  • 0 Bedrooms
  • 0 Bathrooms
  • 1173 Sq Ft
avatar
Daryl Carlson
403-259-4141

Property Type

Other

Description

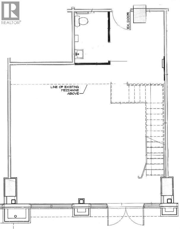
Exceptional main-floor commercial condo located in the heart of the Beltline, one of Calgary’s most vibrant and walkable urban communities, known for its strong daytime and evening foot traffic.Located in the Nova Building, part of a 550-unit condominium complex on 12 Avenue SW, this highly visible unit benefits from a built-in residential customer base and excellent exposure along busy 12 Avenue.The open-concept main floor features dramatic double-height windows, filling the space with natural light and creating an inviting atmosphere. The flexible layout is ideal for retail, office, or professional services. A bright mezzanine-level office overlooks the main floor, providing an open, connected workspace perfect for administrative or consulting use.A prime opportunity for owner-users or investors. Book your showing today. See attached brochure for more details. (id:6769

Property Details

Subarea
Beltline

Lot
0

Year Built
2008

Parking Type
1

Disclaimer:

a

Listing data last updated date: 2026-01-26 03:56:39

a

Listing Agent: Jill Conroy

Brokerage: RE/MAX First