Daryl Carlson - 403-259-4141

 BACK  

Single Family in Calgary

$374,900.00
3107 Warren Street Northwest - MLS® #: A2274787
  • (128)
  • 92
  • 202
  • 1 Bedrooms
  • 1 Bathrooms
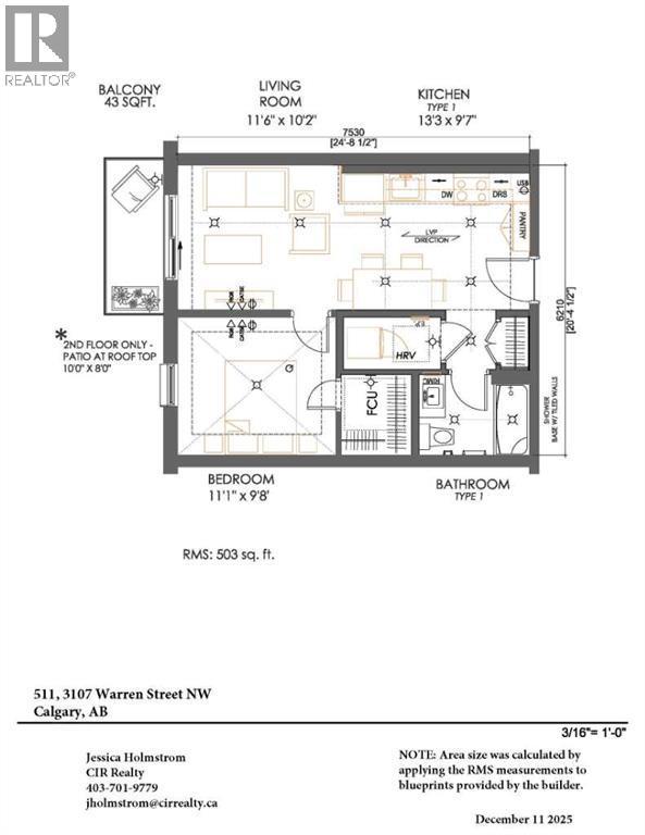
  • 503 Sq Ft
avatar
Daryl Carlson
403-259-4141

Property Type

Single Family

Description

BRAND NEW AND ALL YOUR OWN + ONE BEDROOM LAYOUT + UNDERGROUND PARKING STALL + AC UNIT + WINDOW COVERINGS + STORAGE LOCKER. Step into the best of city living with Autumn at University District, a thoughtfully designed new condo community from Homes by Avi. This one-bedroom, one-bath unit with a private balcony combines modern comfort with elevated style in one of Calgary’s most vibrant urban villages. Whether you’re buying your first home, simplifying your space, or expanding your investment portfolio, this address offers the perfect balance of livability and location.Inside, a curated interior palette featuring quartz countertops, subway tile backsplashes, and sleek hardware. Durable luxury vinyl plank flooring, Whirlpool appliances, and contemporary plumbing fixtures complete the upscale aesthetic. A spacious walk in closet and in-unit laundry make everyday living seamless, while a secure storage locker offers extra room for the things you don’t need every day.Beyond your front door, Autumn raises the bar for condo living with lifestyle-focused amenities: a fitness centre, co-working and entertainment lounge, a top-floor terrace with fire tables and barbecues, heated bike storage, and even a pet wash station. The building is tailored for active, low-maintenance living, with every detail designed for comfort and connection.And the neighbourhood? Unmatched. University District brings together the energy of city life with the charm of a close-knit community. Walk out your front door to grocery stores, cafés, restaurants, a movie theatre, dog parks, seasonal events, and even a winter skating rink are all connected by pedestrian friendly pathways and green space. Steps from the University of Calgary, Foothills and Children’s Hospitals, and just minutes to Market Mall, transit, and major routes, this location puts everything at your fingertips.Estimated possession is set for spring 2026 — giving you time to personalize your home and plan for what’s next. This is n’t just a new condo; it’s a lifestyle you’ll love coming home to.PLEASE NOTE: Photos are of a finished Showsuite of the same model – fit and finish may differ on finished unit. Interior selections and floorplans shown in photos. (id:6769

Property Details

Subarea
University District

Lot
0

Year Built
2026

Flooring
Vinyl Plank

Parking Type
1

Rooms Dimension

RoomFloorDimension
OtherMain levelMeasurements not available
3pc BathroomMain level.00 Ft x .00 Ft
Laundry roomMain level.00 Ft x .00 Ft
OtherMain level9.58 Ft x 13.25 Ft
Living roomMain level10.17 Ft x 11.50 Ft
OtherMain levelMeasurements not available
Primary BedroomMain level9.67 Ft x 11.08 Ft
OtherMain level.00 Ft x .00 Ft

Disclaimer:

a

Listing data last updated date: 2026-01-27 03:48:39

a

Listing Agent: Jessica D. Holmstrom

Brokerage: CIR Realty