Daryl Carlson - 403-259-4141

 BACK  

Single Family in Calgary

$614,990.00
1930 36 Street Southwest - MLS® #: A2276885
  • (155)
  • 220
  • 108
  • 3 Bedrooms
  • 4 Bathrooms
  • 1301 Sq Ft
avatar
Daryl Carlson
403-259-4141

Property Type

Single Family

Description

Well maintained, modern, and quiet 2-storey townhome offering nearly 2,000 sq ft of developed living space in the heart of Killarney. This 3-bedroom, 3.5-bath home features 2 bedrooms up and 1 down. The primary bedroom offers high ceilings, double sinks, a spacious shower, and walk-in closet. The second upstairs bedroom includes its own ensuite, plus convenient second-floor laundry.Fully developed basement with a large third bedroom, 4-piece bathroom, and second living room—ideal for guests or a home office. Recent updates include new flooring, fresh paint, and updated light fixtures. Features include a double-sided fireplace between the living and dining rooms, quartz countertops, gas range, stainless steel appliances, and ample storage.Low condo fees, single detached garage, and an excellent inner-city location—just a 3-minute walk to the LRT for an easy commute downtown, with quick access to 17 Ave, Crowchild Trail, transit, and local amenities. (id:6769

Property Details

Subarea
Killarney/Glengarry

Lot
0

Year Built
2012

Flooring
Ceramic Tile,Hardwood,Vinyl Plank

Parking Type
1

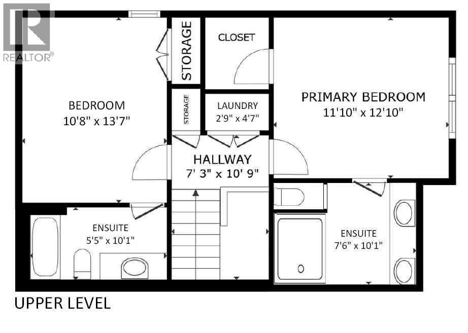
Rooms Dimension

RoomFloorDimension
Primary BedroomSecond level11.83 Ft x 12.83 Ft
4pc BathroomSecond level7.50 Ft x 10.08 Ft
BedroomSecond level10.67 Ft x 13.58 Ft
4pc BathroomSecond level5.42 Ft x 10.08 Ft
Laundry roomSecond level2.75 Ft x 4.58 Ft
BedroomLower level10.42 Ft x 11.50 Ft
4pc BathroomLower level5.00 Ft x 8.00 Ft
Family roomLower level12.42 Ft x 13.58 Ft
Dining roomMain level8.58 Ft x 11.33 Ft
KitchenMain level10.67 Ft x 12.75 Ft
Living roomMain level13.00 Ft x 14.58 Ft
2pc BathroomMain level4.42 Ft x 4.83 Ft

Disclaimer:

a

Listing data last updated date: 2026-02-22 04:02:23

a

Listing Agent: Shiva Shahrestani

Brokerage: Century 21 Bamber Realty LTD.