Daryl Carlson - 403-259-4141

 BACK  

Single Family in Calgary

$2,395,000.00
209 Windermere Road Southwest - MLS® #: A2270864
  • (98)
  • 218
  • 222
  • 5 Bedrooms
  • 5 Bathrooms
  • 3502 Sq Ft
avatar
Daryl Carlson
403-259-4141

Property Type

Single Family

Description

Clean modern lines, warm wood accents, and expansive glazing give this detached residence a confident mid-century modern presence, perfectly at home on Wildwood’s tree-lined streets. The scale feels generous, the natural light is outstanding, and every space has been thoughtfully curated. As you step into the foyer, a built-in bench and custom glass-walled staircase set a welcoming, architectural tone. To one side, a formal dining room features a striking feature wall with a hidden door that leads directly into a fully outfitted butler’s pantry, creating a seamless connection between entertaining and everyday function. A stone-accented powder room offers an early glimpse of the home’s elevated finish level, featuring textured tile & a refined, organic palette. Along the rear of the home, the main living area unfolds into a bright, open-concept great room framed by oversized windows and sculpted plaster fireplace. The living and kitchen areas blend seamlessly, creating an effortless flow to the custom courtyard with an OUTDOOR FIREPLACE feature and large patio. This is a true indoor-outdoor extension of the home, ideal for sunset dinners, weekend lounging, or quiet evenings by the fire. The kitchen is a genuine showpiece. A substantial island, wrapped in an earthy green porcelain countertop with slate veining, anchors the space and pairs beautifully with white oak cabinetry, gold hardware, and a warm vertical-tile hood fan for a polished, modern look. The integrated JennAir Pro appliance package includes a gas cooktop, wall oven, panel-ready refrigerator, dual dishwashers, and a beverage centre. The full-length BUTLER'S PANTRY/PREP KITCHEN provides additional workspace & storage, connecting both to the formal dining room via the hidden door and to the mudroom and oversized attached triple garage for a smooth, functional day-to-day routine. Upstairs, the primary suite feels like a boutique hotel retreat. A tray ceiling adds architectural interest, while the private ba lcony captures serene courtyard views. The walk-in closet includes a centre island and leads into a spa-inspired ensuite with freestanding tub, oversized shower, double vanity with makeup desk, and warm stone-and-oak accents that echo the main floor design. Two additional bedrooms, each with walk-in closets and vaulted ceilings, sit down the hall. One features its own private three-piece ensuite, offering excellent independence for older children or guests. A well-appointed main bath, upper laundry with sink, and a vaulted bonus room complete this level, delivering a family-friendly layout that still feels luxurious. The lower level maintains the same high standard of finish, offering a large recreation room with BUILT-IN MEDIA, wet bar, a glass-enclosed GYM two additional bedrooms, and a full bath with a large STEAM SHOWER. The space is flexible & private, easily configured for guests or an ideal teen hangout. Wildwood is one of the most beloved inner-city communities and a great place to call home! (id:6769

Property Details

Subarea
Wildwood

Lot
5694.11

Year Built
2025

Flooring
Carpeted,Hardwood,Tile

Parking Type
3

Rooms Dimension

RoomFloorDimension
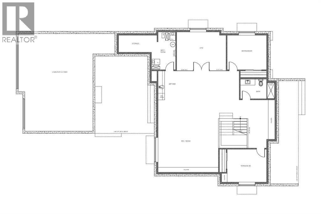
BedroomBasement11.83 Ft x 10.33 Ft
BedroomBasement11.92 Ft x 9.92 Ft
Recreational, Games roomBasement30.58 Ft x 17.83 Ft
Exercise roomBasement14.75 Ft x 11.00 Ft
FurnaceBasement17.25 Ft x 11.25 Ft
3pc BathroomBasement10.33 Ft x 6.50 Ft
Living roomMain level18.67 Ft x 18.92 Ft
KitchenMain level21.83 Ft x 9.83 Ft
PantryMain level19.83 Ft x 5.92 Ft
OtherMain level15.92 Ft x 9.25 Ft
OfficeMain level14.25 Ft x 10.67 Ft
2pc BathroomMain level7.92 Ft x 4.58 Ft
OtherMain level11.67 Ft x 6.33 Ft
Primary BedroomUpper Level17.08 Ft x 15.75 Ft
OtherUpper Level12.17 Ft x 9.58 Ft
BedroomUpper Level12.42 Ft x 11.92 Ft
BedroomUpper Level12.83 Ft x 10.67 Ft
Bonus RoomUpper Level11.33 Ft x 10.50 Ft
Laundry roomUpper Level10.75 Ft x 6.42 Ft

Disclaimer:

a

Listing data last updated date: 2026-01-02 02:37:20

a

Listing Agent: Lisa Johnson

Brokerage: RE/MAX House of Real Estate