Daryl Carlson - 403-259-4141

 BACK  

Single Family in Calgary

$749,900.00
199 Corner Glen Crescent Northeast - MLS® #: A2275986
  • (122)
  • 156
  • 111
  • 3 Bedrooms
  • 3 Bathrooms
  • 2273 Sq Ft
avatar
Daryl Carlson
403-259-4141

Property Type

Single Family

Description

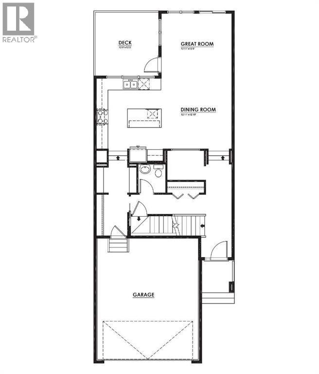
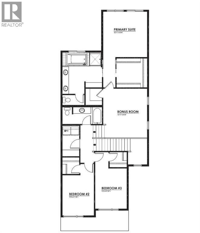
*WALK OUT BASEMENT*BRAND NEW HOME*JAKE 26*QUICK POSSESSION*10 SOLAR PANELS*FLEX ROOM* Amazing Design! Unique in Features! Over 2273+ SF of Stylish design welcomes you into this stunning three-bedroom and 2.5-BATH home located in the beautiful community of Cornerstone. You're welcome to a thoughtfully designed living space that maximizes every inch while providing ample space for your whole family to enjoy! The Gorgeous OPEN FLOOR PLAN invites you in to discover a lovely kitchen that boasts beautiful QUARTZ countertops, a sleek stainless steel Whirlpool appliance package with an upgraded electric stove, a French Door fridge w/ Internal Water/Ice, a microwave, and a Broan power pack built-in cabinet hood fan. A large walk-through pantry and beautiful extended oversized flush centre Island along with a generous great room and dining room- Ideal for all entertaining. A sizeable FLEX SPACE on the main floor, perfect for a den or working from home, as you have a half bath adjacent to the functional space. Upstairs, you will discover THREE SIZEABLE BEDROOMS with a Primary Bedroom boasting a 5-piece dual vanity, a stand-alone shower, an oversized bath and a large walk-in closet. A beautiful OPEN TO BELOW BONUS ROOM offers an additional living space and a full 4-piece bath, plus 2nd-floor laundry, completing the level. ADDITIONAL FEATURES: Jayman Complete home - Washer + Dryer + Window Blinds Included! Fit and Finish SELECT, 12' x 12' upper deck, professionally designed White Colour Palette, rear patio door, raised basement ceiling height, and 3-piece rough-in plumbing. Situated close to the International Airport with quick access to both Deer Foot Trail and Stoney Trail, along with new amenities being added to the community continuously, you will enjoy all Cornerstone has to offer. A brand new build with all of the difficult decisions made along with a functional and intelligent floor plan for a large family. Perfect!! (id:6769

Property Details

Subarea
Cornerstone

Lot
421

Year Built
2025

Flooring
Carpeted,Vinyl Plank

Parking Type
4

Rooms Dimension

RoomFloorDimension
Living roomMain level12.92 Ft x 12.00 Ft
Dining roomMain level12.92 Ft x 12.00 Ft
OtherMain level6.75 Ft x 5.33 Ft
KitchenMain level13.42 Ft x 12.00 Ft
2pc BathroomMain level5.00 Ft x 5.67 Ft
Laundry roomUpper Level9.75 Ft x 5.75 Ft
Primary BedroomUpper Level12.92 Ft x 13.33 Ft
BedroomUpper Level9.25 Ft x 11.83 Ft
Bonus RoomUpper Level12.92 Ft x 14.33 Ft
5pc BathroomUpper Level12.67 Ft x 12.00 Ft
OtherUpper Level8.92 Ft x 9.83 Ft
BedroomUpper Level9.25 Ft x 11.83 Ft
4pc BathroomUpper Level12.00 Ft x 5.25 Ft

Disclaimer:

a

Listing data last updated date: 2026-02-26 04:40:04

a

Listing Agent: Michael R. Laprairie

Brokerage: Jayman Realty Inc.