Daryl Carlson - 403-259-4141

 BACK  

Single Family in Okotoks

$898,900.00
6 Rancher Meadows - MLS® #: A2274983
  • (153)
  • 141
  • 190
  • 4 Bedrooms
  • 4 Bathrooms
  • 2479 Sq Ft
avatar
Daryl Carlson
403-259-4141

Property Type

Single Family

Description

Discover the epitome of custom luxury in the prestigious aviation community of Air Ranch, Okotoks. Situated on a prime lot backing directly onto the private airstrip, this expansive 2,400+ sq. ft. open to below concept residence offers that feeling of space and light throughout the home. The interior offers a unique opportunity for you to PERSONALIZE YOUR SELECTIONS ON THE INTERIOR AND CHOOSE YOUR OWN FINISHES to your exact liking. Designed for both grandeur and functionality, this plan features an exterior side entrance, a triple car garage, 4 bathrooms, and 4 spacious bedrooms, where notably, every single room features its own walk-in closet. The layout is exceptionally flexible; Bedroom 2 as shown in the plans has the option of being knocked out and added as a bonus room to better suit your lifestyle. Enjoy the tranquility of estate living combined with ultimate convenience, with a shopping plaza just a 5-minute walk away. Possession is scheduled for April 2026. (id:6769

Property Details

Subarea
Air Ranch

Lot
445.5

Year Built
2026

Sewer
Municipal sewage system

Flooring
Carpeted,Hardwood,Tile

Parking Type
6

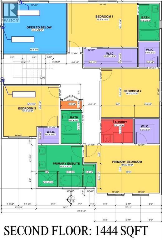
Rooms Dimension

RoomFloorDimension
Living roomMain level14.17 Ft x 11.75 Ft
OtherMain level8.67 Ft x 12.50 Ft
KitchenMain level14.50 Ft x 12.50 Ft
PantryMain level7.50 Ft x 4.17 Ft
OtherMain level7.50 Ft x 7.25 Ft
OfficeMain level8.75 Ft x 8.17 Ft
2pc BathroomMain level3.83 Ft x 8.17 Ft
BedroomUpper Level16.67 Ft x 10.50 Ft
3pc BathroomUpper Level5.00 Ft x 9.00 Ft
BedroomUpper Level14.00 Ft x 11.75 Ft
Laundry roomUpper Level7.75 Ft x 6.00 Ft
3pc BathroomUpper Level5.00 Ft x 8.00 Ft
Primary BedroomUpper Level15.00 Ft x 11.50 Ft
5pc BathroomUpper Level10.67 Ft x 10.00 Ft
OtherUpper Level6.00 Ft x 6.00 Ft
BedroomUpper Level13.33 Ft x 9.75 Ft
OtherUpper Level12.83 Ft x 4.50 Ft
OtherUpper Level5.08 Ft x 3.83 Ft
OtherUpper Level5.00 Ft x 6.00 Ft

Disclaimer:

a

Listing data last updated date: 2025-12-14 05:11:38

a

Listing Agent: Harjas Dulku

Brokerage: Real Estate Professionals Inc.