Daryl Carlson - 403-259-4141

 BACK  

Single Family in Calgary

$329,800.00
1720 13 Street Southwest - MLS® #: A2271748
  • (215)
  • 91
  • 153
  • 2 Bedrooms
  • 2 Bathrooms
  • 1115 Sq Ft
avatar
Daryl Carlson
403-259-4141

Property Type

Single Family

Description

This is a standout spacious and upgraded unit with must-have features. Starting with the ideal CENTRAL LOCATION on a quiet street in Lower Mount Royal with easy access to restaurants, shops, downtown, and main roads. Everything you need is close by, including Mount Royal School, trendy 17th Avenue district, major transit routes, the Bow River Valley and more. This suite has modern finishes and functional layout with big separate living spaces allowing for many options to fit your lifestyle. The welcoming entrance gives access to a closet, half bathroom, upper level, and big dining space with a pantry to the side. The functional kitchen is complete with stainless-steel appliances, stone counter tops, soft close cabinets, and serving counter to a flex space. The grand living room features a two-story ceiling, fireplace, multiple west windows, and walkout to the patio. On the upper level the bonus space loft gives more options for living, work at home, gym, or a studio. The two bedrooms are big enough for a king bed and have great closet space. The main bathroom includes stylish finishes and shelving. Completing this full package is the laundry space with a top-end combination washer/dryer (non-venting). The 200+ sq ft private patio with evening sun is roofed, enclosed with fencing maintained by the condo, and finished with artificial turf.All spaces are bright, open, sunny, and easy keep. Most recent upgrades include the high efficiency wash/dryer, microwave hood fan, and various light fixtures. The fireplace is cleaned and inspected annually. Parking spot is covered, closest to back entrance, and easy access drive-through. This is a quiet and solid concrete frame building. It is well-maintained and funded. Common rooms include bike storage, recycling, and a laundry room. This MOVE-IN READY home truly is a must-see. (id:6769

Property Details

Subarea
Lower Mount Royal

Lot
0

Year Built
1987

Flooring
Carpeted,Laminate

Parking Type
1

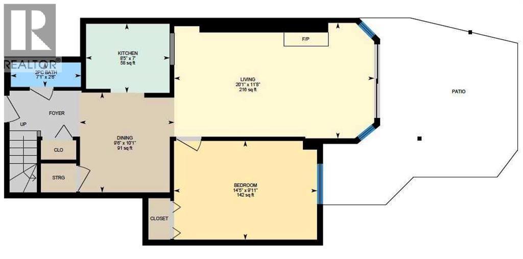
Rooms Dimension

RoomFloorDimension
LoftSecond level11.50 Ft x 10.92 Ft
Primary BedroomSecond level17.08 Ft x 9.83 Ft
4pc BathroomSecond level8.42 Ft x 6.92 Ft
Living roomMain level20.08 Ft x 11.67 Ft
Dining roomMain level10.08 Ft x 9.50 Ft
KitchenMain level8.42 Ft x 7.00 Ft
BedroomMain level14.42 Ft x 9.92 Ft
2pc BathroomMain level7.08 Ft x 2.50 Ft

Disclaimer:

a

Listing data last updated date: 2025-12-14 05:11:25

a

Listing Agent: Richard Haener

Brokerage: RE/MAX First