Daryl Carlson - 403-259-4141

 BACK  

Single Family in Calgary

$2,229,000.00
218 Aspen Summit Place Southwest - MLS® #: A2271363
  • (216)
  • 124
  • 204
  • 6 Bedrooms
  • 5 Bathrooms
  • 3369 Sq Ft
avatar
Daryl Carlson
403-259-4141

Property Type

Single Family

Description

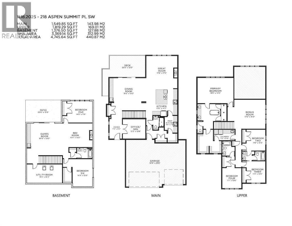
**4,745 TOTAL SQ.FT | 6 BEDS | 5 BATHS (2-ENSUITES) | FINISHED WALKOUT | 3-CAR GARAGE | PIE LOT** Located on a quiet cul-de-sac in Aspen Summit, this brand-new executive walkout by Crystal Creek Homes sits on a generous pie-shaped lot and includes a triple-car garage, premium finishes, and a fully developed lower level. Selections were inspired by Crystal Creek’s previous showhome (as seen in photos). The main floor includes an open-to-above great room that brings in natural light, a gourmet kitchen with a gas range, custom hood fan, premier appliances, a prep kitchen, and a large pantry. The dining area features built-in cabinetry and a beverage centre, and the spacious main-floor office provides a quiet place to work or study. Upstairs, the primary suite offers a spa-inspired ensuite and an oversized walk-in closet with direct access to the laundry room. Three additional bedrooms complete this level—one with its own ensuite and two connected by a Jack and Jill bathroom—along with a large bonus room overlooking the great room below.The walkout basement adds two more bedrooms, a full bathroom, a rec room with a fireplace and wet bar, and a games area that opens to a broom-finished concrete patio. Mechanical highlights include dual furnaces, air conditioning, a water softener, radon rough-in, and full builder warranty. Everyday comfort is built in at every level. Aspen Woods is known for its estate homes, established parks, top-rated schools, and close access to downtown, West District, Aspen Landing, and the Rockies. Homes with this level of scale, finish, and location are rarely available in Aspen Woods. Book your showing before it's gone. (Photos are of the builder's previous showhome with similar layout and finishes). (id:6769

Property Details

Subarea
Aspen Woods

Lot
814

Year Built
2025

Flooring
Carpeted,Hardwood,Tile

Parking Type
6

Rooms Dimension

RoomFloorDimension
Recreational, Games roomBasement18.00 Ft x 13.00 Ft
BedroomBasement14.00 Ft x 11.67 Ft
BedroomBasement14.75 Ft x 10.67 Ft
4pc BathroomBasement8.50 Ft x 5.67 Ft
Recreational, Games roomBasement16.33 Ft x 13.00 Ft
KitchenMain level17.00 Ft x 14.58 Ft
Dining roomMain level19.50 Ft x 13.00 Ft
Great roomMain level17.50 Ft x 17.00 Ft
DenMain level12.42 Ft x 10.67 Ft
FoyerMain level11.00 Ft x 6.00 Ft
OtherMain level11.25 Ft x 4.08 Ft
3pc BathroomMain level7.67 Ft x 6.00 Ft
OtherMain level9.25 Ft x 7.00 Ft
Bonus RoomUpper Level17.00 Ft x 16.00 Ft
Laundry roomUpper Level11.42 Ft x 5.00 Ft
Primary BedroomUpper Level19.00 Ft x 14.00 Ft
BedroomUpper Level11.50 Ft x 10.42 Ft
BedroomUpper Level11.75 Ft x 10.42 Ft
BedroomUpper Level11.08 Ft x 10.50 Ft

Disclaimer:

a

Listing data last updated date: 2025-12-05 04:53:04

a

Listing Agent: Karen Hudson

Brokerage: Real Broker