Daryl Carlson - 403-259-4141

 BACK  

Single Family in Calgary

$624,900.00
21 Midridge Green Southeast - MLS® #: A2273365
  • (240)
  • 192
  • 156
  • 3 Bedrooms
  • 2 Bathrooms
  • 1040 Sq Ft
avatar
Daryl Carlson
403-259-4141

Property Type

Single Family

Description

Tucked away on one of the quietest cul-de-sacs in the neighbourhood, this beautiful Keith built bungalow will check all the boxes in your search. With 3 bedrooms, 2 bathrooms, a fully finished basement, and a detached double garage, you'll have space to grow store all your belongings that you just can't part with. The main floor living room was a bedroom at one time and could easily be converted back to a bedroom or office. The kitchen has seen updates over the years with refinished oak cabinets, quartz counters and stainless-steel appliances. The hardwood floors are a bonus and will stand the test of time. With other recent updates like new windows on the main floor (2020), updated vinyl siding on the house and garage, two renovated bathrooms (2023) and a 2-year-old hot water tank, the list of jobs to complete will be minimal. The yard is amazing, and you can tell how much time and love has been poured into it. The perennials, arch ways, vines, huge deck, and privacy screen will make this space easy to maintain, and even better to enjoy your time in soaking in the west sun and watching the sun set. We really couldn’t be more excited about this gorgeous house on this perfect cul-de-sac. Only steps to Fish Creek Park, Midnapore Lake, and the neighbourhood schools. We’d love to accommodate your showing needs and invite you to come check out this amazing bungalow in Midnapore! (id:6769

Property Details

Subarea
Midnapore

Lot
381

Year Built
1978

Flooring
Carpeted,Hardwood,Tile

Parking Type
2

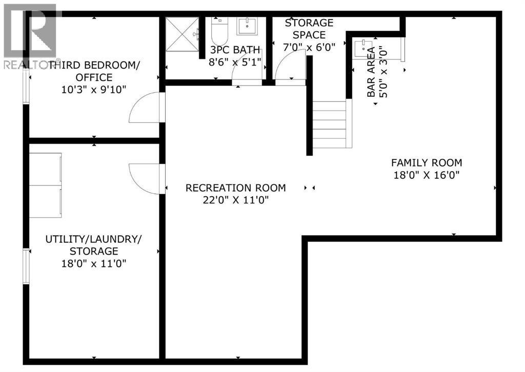
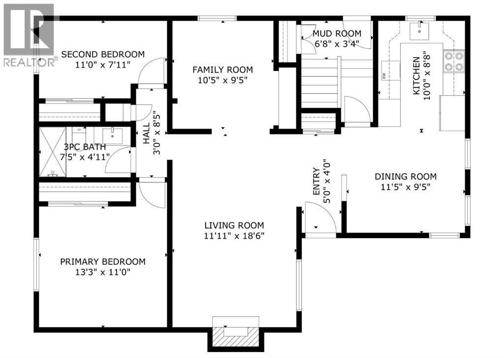
Rooms Dimension

RoomFloorDimension
BedroomBasement10.25 Ft x 9.17 Ft
3pc BathroomBasement8.50 Ft x 5.08 Ft
Primary BedroomMain level13.25 Ft x 11.00 Ft
BedroomMain level11.00 Ft x 7.92 Ft
3pc BathroomMain level7.42 Ft x 4.92 Ft
Living roomMain level18.83 Ft x 12.00 Ft

Disclaimer:

a

Listing data last updated date: 2025-12-05 04:47:52

a

Listing Agent: Greg Wiseman

Brokerage: RE/MAX Landan Real Estate