Daryl Carlson - 403-259-4141

 BACK  

Single Family in Calgary

$644,900.00
3 Legacy Glen Rise Southeast - MLS® #: A2273832
  • (92)
  • 191
  • 141
  • 3 Bedrooms
  • 3 Bathrooms
  • 1706 Sq Ft
avatar
Daryl Carlson
403-259-4141

Property Type

Single Family

Description

* BRAND NEW HOME ALERT * 10 SOLAR PANELS * UPPER BONUS ROOM * ATTACHED GARAGE * HARDIE BOARD EXTERIOR * Exquisite & beautiful, you will immediately be impressed by Jayman BUILT's highly sought-after "HARPER" home located in the up & coming community of Legacy. A lovely neighborhood with new schools & great new amenities welcomes you into over 1700+ sq ft of above-grade living space featuring stunning craftsmanship and thoughtful design. Offering a unique open floor plan boasting a stunning GOURMET kitchen with a beautiful extended island with a flush eating bar & sleek stainless steel Whirlpool appliances, including a French door refrigerator with ice maker, electric slide-in range, Panasonic built-in microwave, and a Broan Power Pack built-in cabinet hood fan. Elegant Polaire QUARTZ countertops, soft-close slab cabinets, and a Blanco undermount sink complement the space. Enjoy the generous dining area adjacent to the spacious kitchen, overlooking the lower Great Room and the rear yard, with access to the rear yard. To complete the main level, you have a convenient half bath for friends and family. You will discover the 2nd level boasts 3 sizeable bedrooms and a bonus room, with the Primary Bedroom featuring a gorgeous 4-pc private en suite with an oversized shower, glass sliding door, dual vanities, and a generous walk-in closet, along with 2nd-floor laundry for convenience. In addition, the rest of the family can enjoy a 4-piece full bath. Raised 9 ft basement ceiling height and 3 pc rough-in for future bath development. Not to mention your Jayman home offers Smart Home Technology Solutions, Core Performance with TEN SOLAR PANELS, Built Green Canada Standard, with an EnerGuide Rating, UV-C Ultraviolet Light Air Purification System, High-Efficiency Furnace with Merv 13 Filters & HRV Unit, Navien-Brand tankless hot water heater and triple pane windows. This beautiful home features the professionally designed Birch Whisper Colour Palette, convenient rear entrance a nd BBQ gas line and a covered front veranda. Enjoy the lifestyle you & your family deserve in a beautiful Community you will enjoy for a lifetime. (id:6769

Property Details

Subarea
Legacy

Lot
275

Year Built
2025

Flooring
Carpeted,Vinyl,Vinyl Plank

Parking Type
2

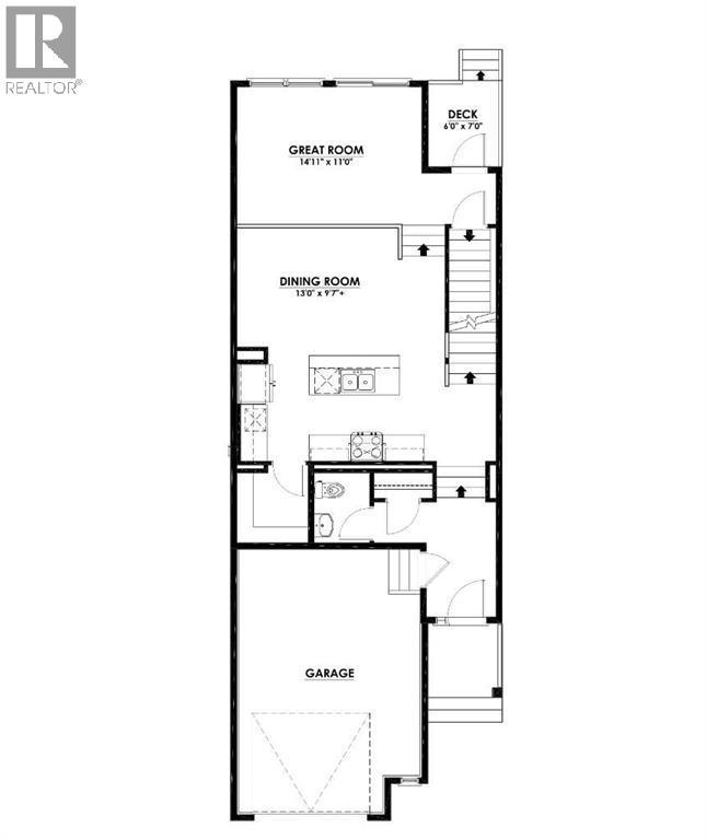
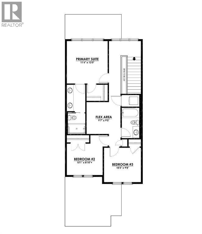
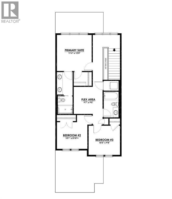
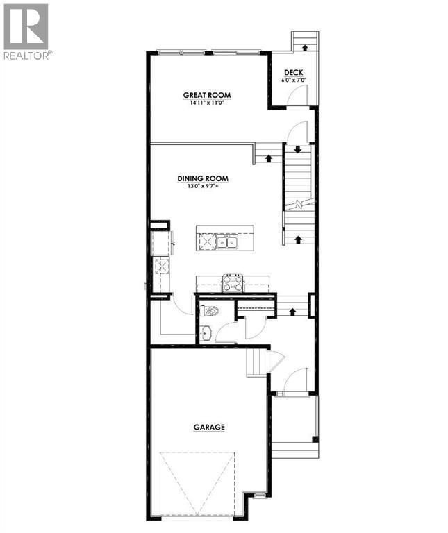
Rooms Dimension

RoomFloorDimension
KitchenMain level13.17 Ft x 11.92 Ft
Dining roomMain level13.00 Ft x 9.58 Ft
Living roomMain level14.92 Ft x 11.00 Ft
2pc BathroomMain level6.33 Ft x 6.00 Ft
Primary BedroomUpper Level11.50 Ft x 12.00 Ft
BedroomUpper Level10.08 Ft x 8.83 Ft
BedroomUpper Level10.42 Ft x 9.67 Ft
4pc BathroomUpper Level14.00 Ft x 5.08 Ft
4pc BathroomUpper Level9.33 Ft x 5.50 Ft
Laundry roomUpper Level3.92 Ft x 4.17 Ft
OtherUpper Level4.17 Ft x 5.92 Ft
Bonus RoomUpper Level9.58 Ft x 9.00 Ft

Disclaimer:

a

Listing data last updated date: 2026-03-15 05:09:46

a

Listing Agent: Michael R. Laprairie

Brokerage: Jayman Realty Inc.