Daryl Carlson - 403-259-4141

 BACK  

Office in Okotoks

$599,900.00
14 Crystalridge Drive - MLS® #: A2273342
  • (217)
  • 171
  • 107
  • 0 Bedrooms
  • 0 Bathrooms
  • 1639 Sq Ft
avatar
Daryl Carlson
403-259-4141

Property Type

Office

Description

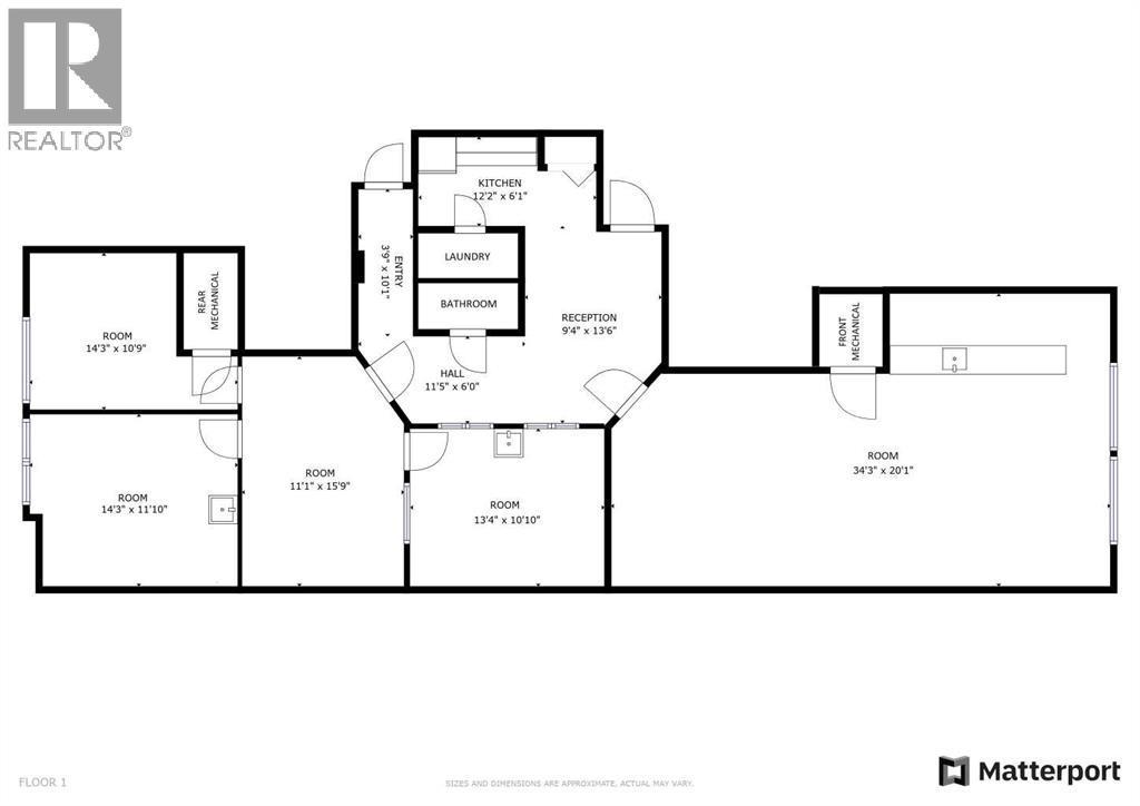
Fantastic opportunity to own half of the 2nd floor of this great commercial unit. This unit has lots of potential for a multitude of uses, at one time it was split into 2 tenants and could easily be split again if you wanted to have a smaller space for your business and rent out the other side. This unit is currently being used a spa and salon, please note the fixtures belong to the tenant and will be removed. This is a great location with lots of natural light, your own heating and cooling controls. There is a reception with a kitchen area and a washroom with tiled flooring (there is potential for a 2nd washroom but it is currently being used as the laundry). There is a huge room with large windows (this is currently used for the hairdressing stations), there are 3 private rooms and another area that would make a great shared space. The unit has modern paint colours and gorgeous flooring. There is additional storage space and an entrance to the back staircase. The building is well maintained and there is lots of parking for your customers. This is a great unit in a fabulous location! View 3D Tour. (id:6769

Property Details

Subarea
Crystalridge

Lot
0

Year Built
2007

Disclaimer:

a

Listing data last updated date: 2025-12-15 04:53:49

a

Listing Agent: Julie Parry

Brokerage: RE/MAX First