Daryl Carlson - 403-259-4141

 BACK  

Single Family in Calgary

$659,900.00
95 Bartlett Crescent Southeast - MLS® #: A2273149
  • (139)
  • 86
  • 127
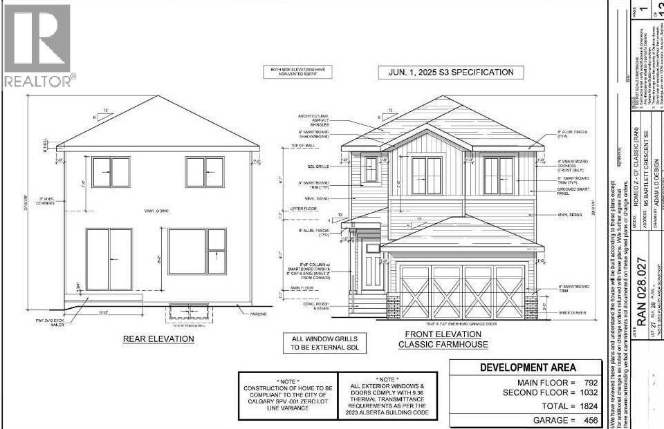
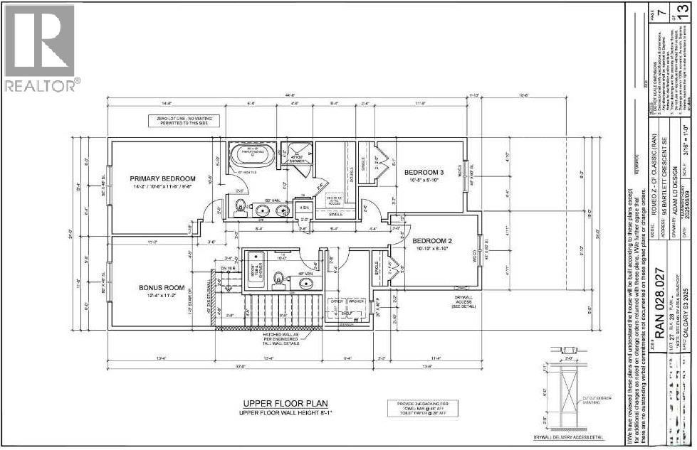
  • 3 Bedrooms
  • 3 Bathrooms
  • 1824 Sq Ft
avatar
Daryl Carlson
403-259-4141

Property Type

Single Family

Description

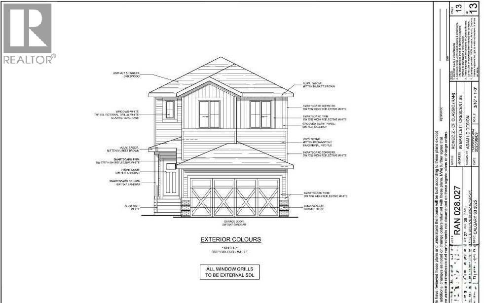
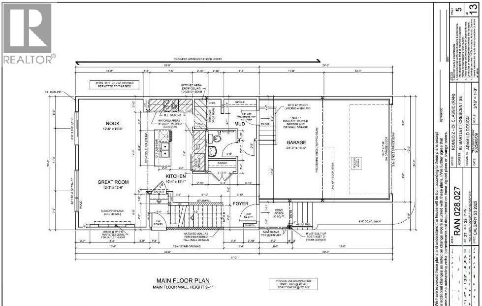
Welcome to 95 Bartlett Crescent SE, a brand new, two-storey masterpiece by Daytona Homes located in the desirable new community of Rangeview in Southeast Calgary. This thoughtfully designed residence offers the perfect blend of style and function, featuring a spacious floor plan with three generous bedrooms and two and a half bathrooms. The main level boasts a bright and open concept, incorporating a comfortable great room and a dedicated nook, all complemented by a mix of durable and attractive flooring, including laminate, cozy carpet, and sleek tile. A significant highlight is the double car attached garage for convenience and the practical side entrance providing direct access to the unfinished basement, offering exceptional potential for future development. Upstairs, a versatile bonus room serves as an ideal flexible space for a family room, home office, or play area. Call to view this home today! (id:6769

Property Details

Subarea
Rangeview

Lot
285.48

Year Built
2025

Flooring
Carpeted,Laminate,Tile

Parking Type
4

Rooms Dimension

RoomFloorDimension
OtherMain level12.50 Ft x 10.50 Ft
Great roomMain level12.17 Ft x 12.50 Ft
KitchenMain level10.33 Ft x 13.08 Ft
FoyerMain level6.33 Ft x 10.17 Ft
2pc BathroomMain level5.33 Ft x 5.33 Ft
OtherMain level6.33 Ft x 6.17 Ft
BedroomUpper Level10.67 Ft x 8.83 Ft
BedroomUpper Level10.83 Ft x 8.83 Ft
Bonus RoomUpper Level12.33 Ft x 11.17 Ft
4pc BathroomUpper Level5.33 Ft x 10.00 Ft
Laundry roomUpper Level6.33 Ft x 10.25 Ft
5pc BathroomUpper Level10.50 Ft x 10.83 Ft
Primary BedroomUpper Level14.17 Ft x 11.50 Ft

Disclaimer:

a

Listing data last updated date: 2025-12-12 04:48:31

a

Listing Agent: Ronald Jobbagy

Brokerage: Royal LePage Benchmark