Daryl Carlson - 403-259-4141

 BACK  

Single Family in Calgary

$1,545,000.00
2231 2 Avenue Northwest - MLS® #: A2253662
  • (60)
  • 165
  • 68
  • 6 Bedrooms
  • 7 Bathrooms
  • 2950 Sq Ft
avatar
Daryl Carlson
403-259-4141

Property Type

Single Family

Description

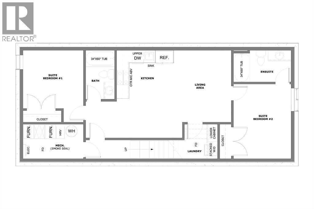
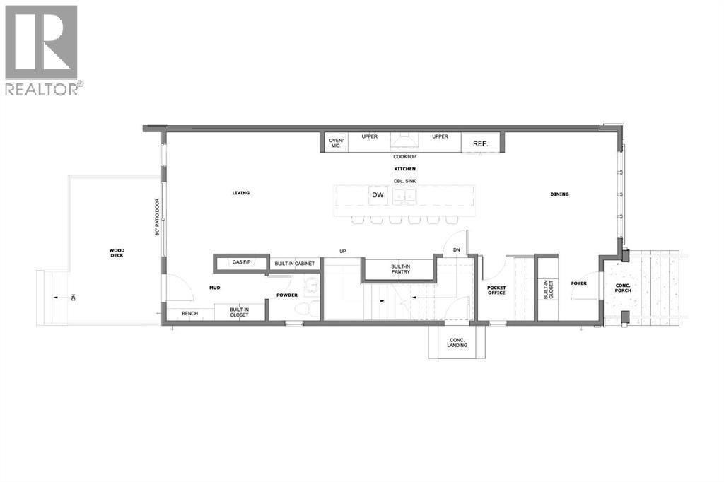
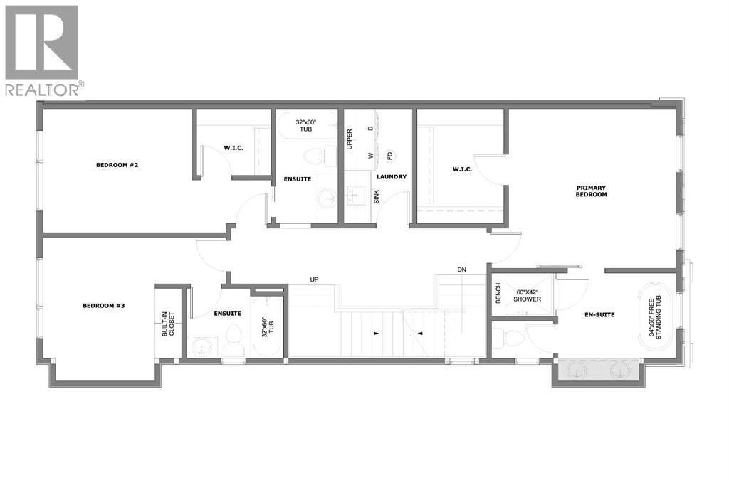
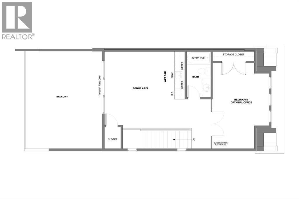
Modern, calm, & thoughtfully composed. This brand WEST HILLHURT semi-detached home blends clean architecture w/ warm, natural finishes across THREE LEVELS, including a loft level w/ bonus area, bright bed/office, & balcony/ DOWNTOWN VIEWS, plus a fully developed LEGAL 2-BED LOWER SUITE (approved by the city). Step inside to a welcoming foyer w/ plenty of space to move around & manage shoes & coats, neatly stored in the built-in closet. A pocket office w/ a built-in desk provides a convenient spot for work-from-home tasks. The front dining area offers a quiet place for morning coffee & a lovely backdrop for family meals. The kitchen truly steals the show w/ the oversized island w/ seating for quick breakfasts, charcuterie nights, or laptop catch-ups. Cabinetry is full-height w/ lots of lower drawers for a modern vibe. The working wall keeps cookware & small appliances tucked away, while quartz surfaces read clean & durable. At the back, the family room is all about comfort. The gas fireplace w/ simple built-ins gives you space for art & books, while the layout makes TV viewing effortless. Sliding patio doors to the backyard floods the room w/ light & sets up easy indoor-outdoor living. The rear mudroom is exactly where you want it, fitted w/ custom storage & a bench so shoes, bags, & dog leashes have a home. A discreet powder room completes this level.Upstairs, the PRIMARY SUITE feels like a retreat at the end of the day. You get a true walk-in closet & an ensuite that checks every box: DOUBLE VANITY, an oversized shower, & a FREESTANDING TUB that actually invites a soak. The secondary bedrooms features their own 4-pc ensuites & built-in closets giving families the flexibily they desreve. The LAUNDRY ROOM up here saves steps & keeps the main floor tidy.The loft level adds space to spread out across the home, w/ a bright & spacious bedroom or optional office w/ glass partition wall & French door, w/ built-in storage. The bonus rec area features a modern & upsc ale wet bar, w/ access to the oversized balcony w/ downtown views! There’s also a full 4-pc bath on this level for convenience! Downstairs, the legal 2-bed suite (approved by the city), keeps the modern & upscale feel going w/ a full kitchen w/ quartz & stainless steel appliance package, good-sized living area, separate laundry, a primary bed w/ private ensuite bath, & a second bed w/ quick access to the main 4-pc bath.Walk to neighbourhood parks for quick dog runs & fresh air. Schools are excellent here – Hillhurst School for K-6, Queen Elizabeth Junior High & Senior High just up the road, & William Aberhart High School for advanced academics & sports programs. Weekend coffee, local bakeries, & casual dining are all within minutes, & downtown is an easy commute by car, bike, or transit. River pathways make a perfect loop for a jog or sunset stroll. It’s the right mix of community feel & city access. (id:6769

Property Details

Subarea
West Hillhurst

Lot
3245.32

Year Built
2025

Flooring
Hardwood,Tile,Vinyl Plank

Parking Type
2

Rooms Dimension

RoomFloorDimension
Primary BedroomSecond level13.50 Ft x 12.75 Ft
OtherSecond level9.17 Ft x 6.75 Ft
BedroomSecond level12.00 Ft x 9.92 Ft
BedroomSecond level11.58 Ft x 9.00 Ft
Laundry roomSecond level9.25 Ft x 5.50 Ft
4pc BathroomSecond levelMeasurements not available
5pc BathroomSecond levelMeasurements not available
4pc BathroomSecond levelMeasurements not available
Bonus RoomThird level21.42 Ft x 20.08 Ft
BedroomThird level17.75 Ft x 11.58 Ft
4pc BathroomThird levelMeasurements not available
BedroomBasement13.00 Ft x 10.00 Ft
BedroomBasement12.42 Ft x 10.42 Ft
KitchenBasement9.50 Ft x 8.42 Ft
Living roomBasement15.17 Ft x 10.33 Ft
Laundry roomBasement6.00 Ft x 6.00 Ft
4pc BathroomBasementMeasurements not available
4pc BathroomBasementMeasurements not available
Living roomMain level16.33 Ft x 15.00 Ft

Disclaimer:

a

Listing data last updated date: 2025-12-20 04:00:33

a

Listing Agent: Lisa Johnson

Brokerage: RE/MAX House of Real Estate