Daryl Carlson - 403-259-4141

 BACK  

Single Family in Calgary

$849,000.00
2006 30 Avenue Southwest - MLS® #: A2272065
  • (131)
  • 142
  • 117
  • 2 Bedrooms
  • 1 Bathrooms
  • 999 Sq Ft
avatar
Daryl Carlson
403-259-4141

Property Type

Single Family

Description

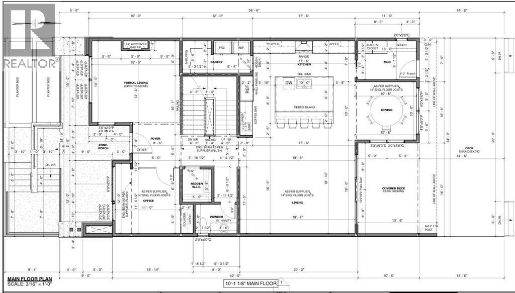
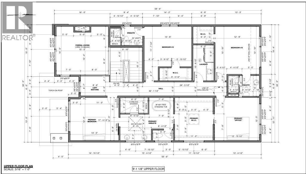
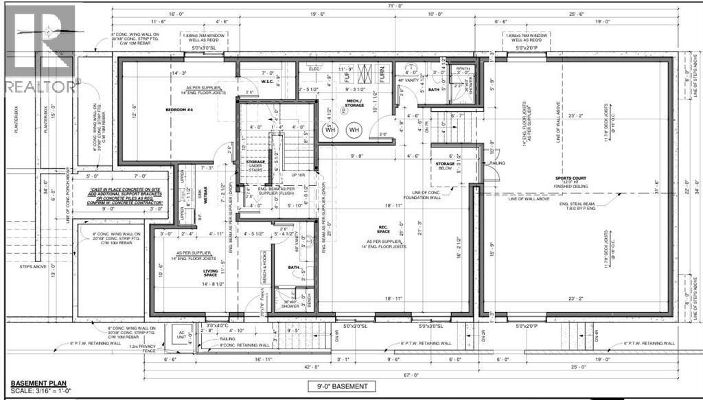
Prime Inner-City Opportunity in Marda Loop with Mountain Views!Attention builders and savvy investors! This is your chance to secure a premium 43’ x 128’ lot in one of Calgary’s most sought-after inner-city communities. Or if you are a buyer looking for a perfect lot to build your dream home. Located just steps from the heart of Marda Loop, this property offers endless potential in a vibrant, amenity-rich neighbourhood known for its boutique shops, trendy restaurants, and walkable lifestyle.Whether you're looking to build a luxury custom home or hold as a long-term investment, this lot delivers big on location and flexibility. Development permits (DP) are approved and released, full construction plans are available, saving you time and fast-tracking your next project. The lot size easily supports a large two-storey detached home (pontentially a three-storey depending on City review and approval) with plenty of room for a spacious backyard and triple garage.Opportunities like this don’t come around often, especially in a neighbourhood that continues to see strong demand and future growth. Build, invest, or hold. The choice is yours. But in Marda Loop, you’re always winning. (id:6769

Property Details

Subarea
South Calgary

Lot
487

Year Built
1950

Flooring
Linoleum

Rooms Dimension

RoomFloorDimension
Primary BedroomMain level16.00 Ft x 11.00 Ft
3pc BathroomMain level.00 Ft x .00 Ft
BedroomMain level11.00 Ft x 10.00 Ft

Disclaimer:

a

Listing data last updated date: 2026-01-29 04:21:38

a

Listing Agent: Jonida Halili

Brokerage: eXp Realty