Daryl Carlson - 403-259-4141

 BACK  

Single Family in Calgary

$690,000.00
283 Macewan Drive Northwest - MLS® #: A2269942
  • (189)
  • 190
  • 126
  • 4 Bedrooms
  • 4 Bathrooms
  • 1639 Sq Ft
avatar
Daryl Carlson
403-259-4141

Property Type

Single Family

Description

Beautifully upgraded 3+1 bedroom, two-storey split home ideally located across from MacEwan Park & Playfield, with transit conveniently right in front of the house! Step into a bright, open layout featuring vaulted ceilings and a seamless flow between the living and dining areas. The modern white kitchen showcases quartz countertops, stainless steel appliances, a glass tile backsplash, double sink, and a cozy breakfast nook that opens to a west-facing deck with aluminum railing. Enjoy the inviting family room with a brick wood-burning fireplace, plus a main-floor laundry area and 2-piece bath.Upstairs offers three comfortable bedrooms, including a primary bedroom with his-and-hers closets, a tub ensuite, and a renovated 4-piece main bath. The basement (illegal) includes an additional bedroom and living space, perfect for guests or extended family.Recent upgrades include new siding and roof (2025), quartz counters throughout, LED lighting, new flooring, fresh paint, stainless steel appliances, and a newer hot water tank. The flat backyard with lane access provides space for a trailer. Just steps to Nose Hill Park, schools, and express bus routes downtown. (id:6769

Property Details

Subarea
MacEwan Glen

Lot
410

Year Built
1991

Flooring
Carpeted,Hardwood,Tile

Parking Type
2

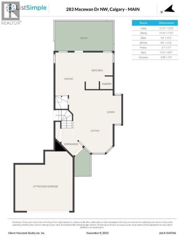
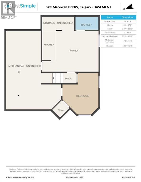
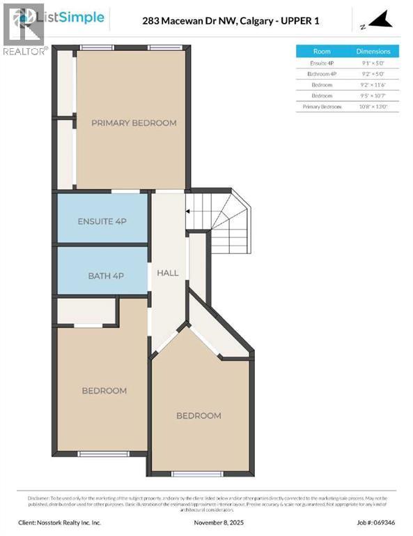
Rooms Dimension

RoomFloorDimension
4pc BathroomSecond level9.08 Ft x 5.00 Ft
4pc BathroomSecond level9.17 Ft x 5.00 Ft
BedroomSecond level9.17 Ft x 11.50 Ft
BedroomSecond level9.42 Ft x 10.58 Ft
Primary BedroomSecond level10.67 Ft x 13.00 Ft
BedroomBasement10.67 Ft x 13.25 Ft
OtherBasement19.00 Ft x 11.17 Ft
StorageBasement13.25 Ft x 12.83 Ft
2pc BathroomBasement7.00 Ft x 4.00 Ft
Family roomBasement9.83 Ft x 12.83 Ft
KitchenBasement6.50 Ft x 17.25 Ft
OtherBasement4.08 Ft x 3.42 Ft
Family roomLower level13.00 Ft x 12.83 Ft
OtherLower level9.08 Ft x 4.25 Ft
2pc BathroomLower level3.33 Ft x 7.83 Ft
Laundry roomLower level8.92 Ft x 7.83 Ft
Living roomMain level11.92 Ft x 12.25 Ft
Dining roomMain level11.92 Ft x 7.92 Ft
OtherMain level9.50 Ft x 14.08 Ft

Disclaimer:

a

Listing data last updated date: 2025-12-18 03:22:27

a

Listing Agent: Nosa Igbinosa

Brokerage: Real Broker