Daryl Carlson - 403-259-4141

 BACK  

Loading map...

Multi-family in Calgary

$2,979,000.00
1511 23 Avenue Northwest - MLS® #: A2267276
  • (109)
  • 130
  • 67
  • 0 Bedrooms
  • 0 Bathrooms
  • 5190 Sq Ft
avatar
Daryl Carlson
403-259-4141

Property Type

Multi-family

Description

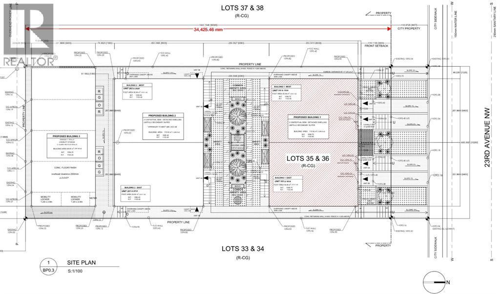
An exceptional opportunity to own a brand-new 4plex with 4 legal basement suites—a total of 8 self-contained rental units complete with 4 single garages, offering outstanding income potential and long-term value. Each basement suite has its own private entrance, ensuring privacy and flexibility for tenants.Showcasing modern architecture and premium finishes, this property stands out as one of Calgary’s most impressive multi-family builds. Perfectly located in Capitol Hill, just off 14th Street NW, it provides unbeatable access to SAIT, the University of Calgary, Confederation Park, hospitals, downtown, and major transit routes.The upper units each offer 3 bedrooms, 2 bathrooms, open-concept living and dining areas, and a spacious kitchen with high-end finishes. The basement suites feature 9-ft ceilings, 1 bedroom, 1 bathroom, and bright, functional layouts designed for comfort and efficiency. Built to a higher standard with superior construction quality and a unique drive-in design, this property combines form and function beautifully.Eligible for CMHC’s MLI Select program, offering potential low down payments and extended amortizations (subject to lender and CMHC approval). A rare chance to secure a turnkey 8-unit property in one of Calgary’s most desirable inner-city neighborhoods. Feel free to reach out for more details (id:6769

Property Details

Subarea
Capitol Hill

Lot
0

Year Built
2026

Parking Type
8

Disclaimer:

a

Listing data last updated date: 2025-10-29 04:25:59

a

Listing Agent: Sean Na

Brokerage: MaxWell Canyon Creek