Daryl Carlson - 403-259-4141

 BACK  

Loading map...

Single Family in Calgary

$1,359,900.00
124 Greenwich Heath Northwest - MLS® #: A2267543
  • (233)
  • 50
  • 114
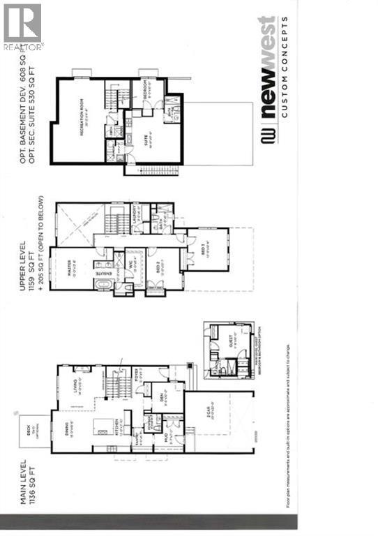
  • 3 Bedrooms
  • 3 Bathrooms
  • 2500 Sq Ft
avatar
Daryl Carlson
403-259-4141

Property Type

Single Family

Description

Welcome to Calgary’s New York inspired community of Upper Greenwich. Presenting The Manhattan by New West Luxury Homes at 124 Greenwich Heath NW, currently in the framing stage with mechanical rough-ins underway. This architecturally striking home offers a thoughtfully designed open concept layout with expansive living spaces, including a dramatic open-to-above great room that creates a sense of volume and light throughout. Large architectural windows bring in an abundance of natural light, enhancing the seamless flow between levels. Built by New West renowned for their commitment to design excellence, craftsmanship, and elevated specifications this home offers a rare opportunity to own a truly inspired build in one of Calgary’s most exciting new communities. Located just steps from the Calgary Farmers’ Market West, boutique shopping, cafés, restaurants, and WinSport, Upper Greenwich also offers easy access to Bow River pathways, downtown Calgary, and the mountains. The community features tennis courts, walking paths, playgrounds, and beautifully designed green spaces, all contributing to a vibrant, boutique style lifestyle. For more information, visit the New West show home next door at 120 Greenwich Heath NW. (id:6769

Property Details

Subarea
Greenwood/Greenbriar

Lot
756

Year Built
2025

Flooring
Carpeted,Hardwood,Tile

Parking Type
4

Rooms Dimension

RoomFloorDimension
Primary BedroomThird level13.00 M x 13.60 M
BedroomThird level13.00 M x 10.70 M
BedroomThird level13.00 M x 12.60 M
5pc BathroomThird level10.00 M x 10.00 M
4pc BathroomThird level9.60 M x 6.90 M
2pc BathroomMain level6.00 M x 5.40 M

Disclaimer:

a

Listing data last updated date: 2026-03-15 05:12:29

a

Listing Agent: Jenny Spencer

Brokerage: Real Broker