Daryl Carlson - 403-259-4141

 BACK  

Loading map...

Single Family in Calgary

$239,900.00
1836 12 Avenue Southwest - MLS® #: A2246748
  • (239)
  • 78
  • 243
  • 2 Bedrooms
  • 1 Bathrooms
  • 747 Sq Ft
avatar
Daryl Carlson
403-259-4141

Property Type

Single Family

Description

This bright and beautifully updated 2-bedroom condo offers the perfect blend of comfort, convenience, and location. Enjoy a sunny south-facing patio that’s fully surrounded by a lush, mature hedge—creating your own private outdoor retreat right in the city. As an end unit, this home is filled with natural light from extra windows and offers a greater sense of privacy with fewer shared walls.Inside, you’ll love the open-concept layout with laminate flooring throughout, a spacious living area, and a kitchen made for entertaining with a large island that seats up to four. The espresso cabinetry, stainless steel appliances, and upgraded lighting bring a modern touch to the space.Both bedrooms are generously sized, each with double closets, and the bathroom features a deep soaker tub, tiled surround, and updated finishes. Enjoy the convenience of in-suite laundry with a combo washer/dryer and your own assigned parking stall just steps from the back door.Located in one of Calgary’s most walkable neighborhoods — you’re just minutes to 17th Avenue’s shops, cafés, and restaurants, the Sunalta LRT, and have quick access to downtown.Whether you’re a first-time buyer, investor, or looking to simplify your lifestyle, this Sunalta gem checks all the boxes. (id:6769

Property Details

Subarea
Sunalta

Lot
0

Year Built
1978

Flooring
Ceramic Tile,Laminate

Parking Type
1

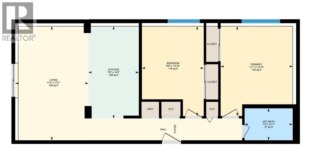
Rooms Dimension

RoomFloorDimension
4pc BathroomMain level4.92 Ft x 7.42 Ft
BedroomMain level13.83 Ft x 9.50 Ft
KitchenMain level14.25 Ft x 7.75 Ft
Living roomMain level17.58 Ft x 11.25 Ft
Primary BedroomMain level10.83 Ft x 11.08 Ft

Disclaimer:

a

Listing data last updated date: 2025-10-23 00:46:44

a

Listing Agent: Ashley Keller

Brokerage: eXp Realty