Daryl Carlson - 403-259-4141

 BACK  

Loading map...

Single Family in Calgary

$379,000.00
40 Livingston Parade Northeast - MLS® #: A2262092
  • (71)
  • 163
  • 128
  • 2 Bedrooms
  • 3 Bathrooms
  • 1210 Sq Ft
avatar
Daryl Carlson
403-259-4141

Property Type

Single Family

Description

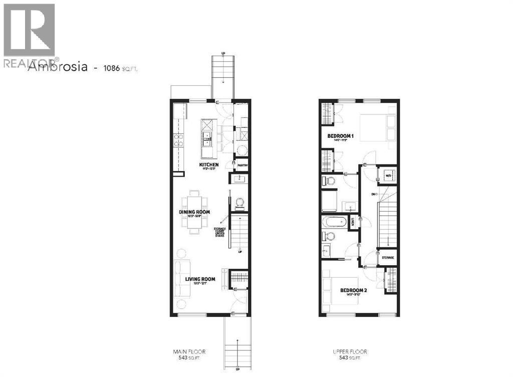
Ambrosia at ZEN Livingston – Offering 1,086 sq ft of thoughtfully designed living space, this 2 BED, 2.5 bath home features TRIPLE-PANE windows, advanced insulation, and a rough-in for solar panels. The OPEN CONCEPT main floor showcases Cicero Luxury VINYL PLANK flooring, pot lights with knock-down ceilings, and a BRIGHT LIVING AND DINING area that flows into your BACKYARD that is FULLY FENCED, perfect for those with kids, pets or wanting to enjoy some privacy - complete with BBQ GAS LINE, landscaping, and irrigation. The modern kitchen features white QUARTZ COUNTERTOPS and a 6-piece Whirlpool appliance package. Upstairs, you'll find two spacious bedrooms including a primary bedroom with an ensuite bathroom, and upstairs laundry. Enjoy HARDIE BOARD siding (hail/fire-resistant), and be part of a vibrant community just steps from the Livingston Hub with splash park, rink, courts & more!. Photos are representative. (id:6769

Property Details

Subarea
Livingston

Lot
0

Year Built
2025

Flooring
Carpeted,Vinyl Plank

Parking Type
1

Rooms Dimension

RoomFloorDimension
Living roomMain level10.42 Ft x 12.08 Ft
Dining roomMain level10.42 Ft x 12.67 Ft
Primary BedroomMain level11.42 Ft x 11.42 Ft
2pc BathroomMain level.00 Ft x .00 Ft
BedroomUpper Level9.83 Ft x 14.00 Ft
3pc BathroomUpper Level.00 Ft x .00 Ft
4pc BathroomUpper Level.00 Ft x .00 Ft

Disclaimer:

a

Listing data last updated date: 2025-11-23 04:46:01

a

Listing Agent: Shane Koka

Brokerage: Bode Platform Inc.