Daryl Carlson - 403-259-4141

 BACK  

Loading map...

Single Family in Calgary

$1,399,998.00
2611 35 Street Southwest - MLS® #: A2248051
  • (167)
  • 83
  • 228
  • 3 Bedrooms
  • 4 Bathrooms
  • 1962 Sq Ft
avatar
Daryl Carlson
403-259-4141

Property Type

Single Family

Description

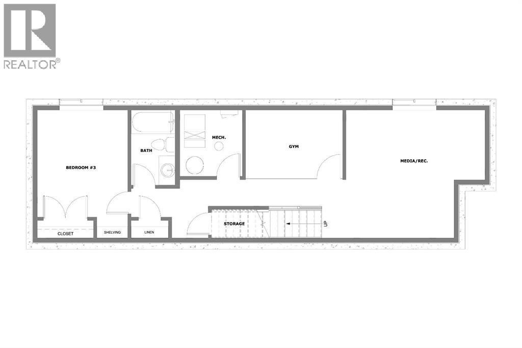
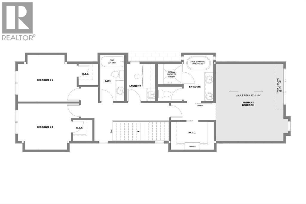
This brand-new DETACHED INFILL in KILLARNEY pairs modern architecture with real-life function, traits you’ve grown to expect from Moon Homes! Light pours in through large windows, finishes are clean and timeless, and the floorplan keeps everyday living simple.Step into a welcoming foyer and a front dining space that fits a long table for gatherings. The centerpiece kitchen is where form meets function: upscale wall panelling, a generous island with QUARTZ counters, FULL-HEIGHT CABINETRY, a BUILT-IN PANTRY for the bulk items and small appliances, and a sleek appliance package anchored by a GAS COOKTOP. It’s a layout that works for weeknight meals and weekend prep alike, keeping lines of sight open to both the dining room and the rear living area. At the back, the great room is relaxed and inviting, centred on a contemporary fireplace wall that’s ready for your media setup, with large 10-ftx8-ft bi-parting patio doors to the yard so the space stays bright year-round. A well-placed POWDER ROOM sits off the staircase – easy access, out of view – and side mudroom is exactly what you want after a run to the store or a rainy dog walk: a practical side entry with a BUILT-IN CLOSET direct from the exterior path so traffic doesn’t cut through the main living area.Upstairs, the primary suite takes the quiet front of the home and turns it into a true retreat. The bedroom reads calm and airy with a VAULTED CEILING, while the ensuite brings SPA ENERGY and a STEAM SHOWER – perfect for cold mornings and post-workout recovery. A proper WALK-IN CLOSET handles day-to-day rotation and seasonal storage without crowding the bedroom. Down the hall, two bright secondary bedrooms both include WALK-IN CLOSETS, giving kids or guests real storage (and fewer dressers). The MAIN 4-PC BATH is modern and streamlined, finished with durable tile and a full-depth tub. A convenient UPPER-LEVEL LAUNDRY keeps baskets off the stairs and speeds up weekend chores.The lower level is designed to flex a s life changes. A large family room is ready for movie marathons or a game table, while the GLASS-WALLED GYM SPACE gives you a dedicated zone for workouts without feeling boxed in. There’s also a comfortable fourth bedroom that adds BUILT-IN SHELVING alongside the closet – great for books, collectibles, or a tidy work-from-home setup – and a full bathroom to serve guests. Storage and mechanical are neatly consolidated, so the main area stays open and usable.The Killarney location truly brings it all together! You’re minutes to 17 Ave SW for coffee, dinner, and weekend errands, with WESTBROOK LRT simplifying the commute. Outdoor time is easy at neighbourhood parks, the KILLARNEY AQUATIC & FITNESS CENTRE, and the nearby SHAGANAPPI GOLF COURSE. School options include KILLARNEY SCHOOL (K–6) and HOLY NAME (K–6 FRENCH IMMERSION), with straightforward access to junior-high pathways and ERNEST MANNING HIGH SCHOOL. It’s the inner-city lifestyle – walkable, connected, and ready for real life! (id:6769

Property Details

Subarea
Killarney/Glengarry

Lot
2997.75

Year Built
2025

Flooring
Carpeted,Hardwood,Tile

Parking Type
2

Rooms Dimension

RoomFloorDimension
Primary BedroomSecond level16.00 Ft x 14.08 Ft
OtherSecond level9.00 Ft x 6.25 Ft
BedroomSecond level12.50 Ft x 9.67 Ft
Laundry roomSecond level7.75 Ft x 6.08 Ft
4pc BathroomSecond levelMeasurements not available
5pc BathroomSecond levelMeasurements not available
BedroomBasement12.08 Ft x 10.50 Ft
Exercise roomBasement10.92 Ft x 7.83 Ft
Recreational, Games roomBasement15.75 Ft x 14.50 Ft
FurnaceBasement7.42 Ft x 7.08 Ft
4pc BathroomBasementMeasurements not available
Living roomMain level16.58 Ft x 16.00 Ft
KitchenMain level22.00 Ft x 9.33 Ft
Dining roomMain level14.08 Ft x 9.42 Ft
2pc BathroomMain levelMeasurements not available

Disclaimer:

a

Listing data last updated date: 2025-12-14 05:00:47

a

Listing Agent: Lisa Johnson

Brokerage: RE/MAX House of Real Estate