Daryl Carlson - 403-259-4141

 BACK  

Loading map...

Office in Calgary

$12.00
687930 Bowness Road Northwest - MLS® #: A2122445
  • (71)
  • 119
  • 210
  • 0 Bedrooms
  • 0 Bathrooms
  • 2394 Sq Ft
avatar
Daryl Carlson
403-259-4141

Property Type

Office

Description

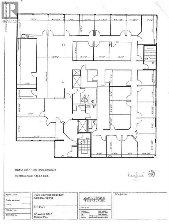
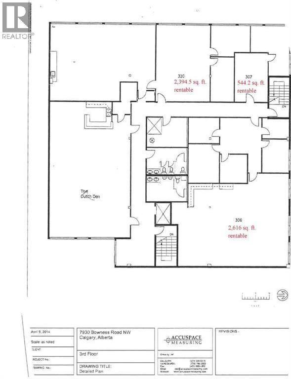
Entire 2nd floor, 7,481 sq. ft. of secure well developed space with abundant natural light, former formerly occupied by Child Family services space. 3rd floor suite of 2,394 sq. ft., can be subdivided. Elevator access, excellent parking, below market rates including utilities, and great Bowness Road location. 3 story retail /office building with elevator access. Landlord completing upgrades to common areas. Accessible location with public transit and close proximity to Hwy 1, Sarcee Trail, Stoney Trail, Crowchild Trail and Downtown. Ample front parking. (id:6769

Property Details

Subarea
Bowness

Lot
0

Year Built
1978

Disclaimer:

a

Listing data last updated date: 2025-10-09 01:30:48

a

Listing Agent: Paul Loutitt

Brokerage: Century 21 Bamber Realty LTD.