Daryl Carlson - 403-259-4141

 BACK  

Loading map...

Business in Cochrane

$3,150,000.00
26 Griffin Industrial Point - MLS® #: A2254001
  • (246)
  • 160
  • 204
  • 0 Bedrooms
  • 0 Bathrooms
  • 8968 Sq Ft
avatar
Daryl Carlson
403-259-4141

Property Type

Business

Description

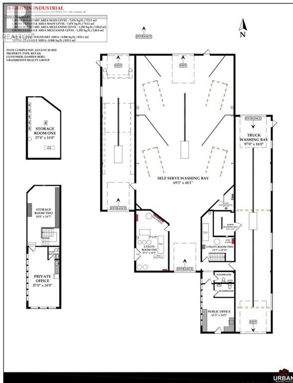
Introducing a rare opportunity to own a purpose-built, high-visibility commercial property designed to serve a wide range of vehicle types — from compact cars to large trucks. Located in the thriving industrial area of Griffin Industrial, this 8,968 sq ft facility offers a turn-key solution for operators in the car/truck wash industry or those seeking a unique income-producing asset.Main Level Highlights: 4 self-serve wash bays, Massive 96-ft Truck & RV Bay (Max Height: 13’6”), Touchless Typhoon drive-through wash bay, Dedicated room for a potential dog wash, Public office, 2 utility rooms, water softener room, and two 2-pc washroomsMezzanine Level: Private office, 2 storage rooms, Additional 2-pc washroomModern, clean, and professionally maintained, this facility is equipped with premium components, a brand new Navien Boiler System, and intuitive flow-through access for ease of customer use. The office space is bright and welcoming, while the mezzanine level provides functional work and storage areas.Additional Features: Paved access routes and drive-through lanes, Excellent signage exposure, Plenty of customer and employee parking, Easy access for trucks, trailers, and RVs.This property is ideal for an owner-operator or investor looking to expand or enter the car/truck wash industry with a one-of-a-kind facility — a rarity in today’s market.High-traffic location with quick access to major commuter and transport routes makes this an unbeatable opportunity. (id:6769

Property Details

Subarea
Industrial

Lot
2530

Year Built
2019

Disclaimer:

a

Listing data last updated date: 2025-12-14 04:58:26

a

Listing Agent: Damien Berg

Brokerage: Grassroots Realty Group